Vuokrataan toimistotilat - Helsinki
Itälahdenkatu 23, Lauttasaari, Lauttasaari, 00210 Helsinki #10630079
Osoite
Itälahdenkatu 23, Lauttasaari, 00210 Helsinki
Tilatyyppi
Toimistotilaa
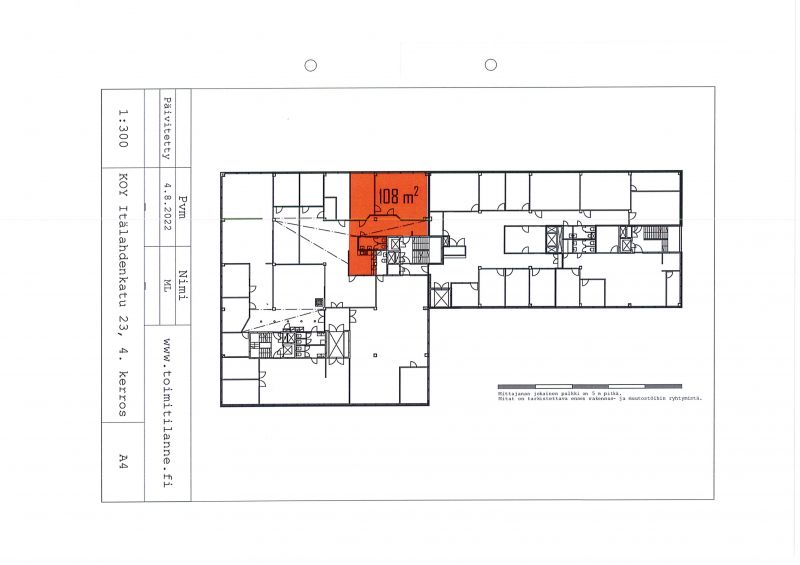
108 m2
Kiinteistö
Vuokrataan kiinteistön 4. kerroksesta toimistotilaa 108 m². 2 toimistohuonetta, keittiö sekä wc-tila. Vuokralaisen käytössä sekä henkilöhissi.
Pysäköinti
Kiinteistöllä parkkipaikkoja.
Vapautuu
Heti
Energiatehokkuusluokka
Ei lain edellyttämää energiatodistusta
Ota yhteyttä
Comreal Oy LKV
Tuula Leikas
Näytä puhelinnumero
040 531 3722
P.
Näytä puhelinnumero
020 744 1000
Läkkisepänkuja 6, 00620 Helsinki
Comreal Oy on kasvava ja osaava kiinteistöalan palveluntuottaja kiinteistöjen omistajille ja käyttäjille.
Kiinteistö on sijoittajalle hyvä sijoitus vain, jos siellä on tyytyväiset asiakkaat, eli vuokralaiset. Siksi laadukas asiakaspalvelu on toiminnan lähtökohta.
Pyydä lisätietoa
