Vuokrataan toimistotilat - Helsinki
Valimotie 13 A, Pitäjänmäki, 00380 Helsinki #10629730
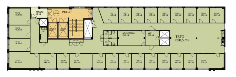
Vuokrattavana viihtyisää kolmannen kerroksen toimistotilaa.
Osoite
Valimotie 13 A, 00380 Helsinki
Tilatyyppi
Toimistotilaa
627 m2
Kiinteistö
Vuokrattavana viihtyisää kolmannen kerroksen toimistotilaa. Tilassa on sekä yksittäisiä toimistohuoneita että runsaasti avotilaa. Toimisto on muokattavissa vastaamaan yrityksen tarpeita.
Sijainti
Pitäjänmäki, Helsinki
Pysäköinti
Autopaikat: 130 kpl autohallissa ja katolla.
Palvelut
-Aulapalvelut
-Lounasravintola
-Neuvottelutilat
-Kuntosali
-Sauna
-Lounasravintola
-Neuvottelutilat
-Kuntosali
-Sauna
Kulkuyhteydet
-Juna-asema kävelyetäisyydellä
-Bussi
-Oma auto
-Bussi
-Oma auto
Vapautuu
Heti
Kerros
3
Energiatehokkuusluokka
Ei lain edellyttämää energiatodistusta
Näkyvällä paikalla
Hissi
Ota yhteyttä
REALIUM OY LKV
Tammasaarenkatu 1, 00180 Helsinki
Vaihde:
Näytä puhelinnumero
010 326 346
Tuomo Mäkelä
tuomo.makela@realium.fi
p.
Näytä puhelinnumero
044 050 1158
Joel Keto
joel.keto@realium.fi
p.
Näytä puhelinnumero
045 317 0330
KAIKKI TILAVAIHTOEHDOT KERRALLA!
SOITA - MEILAA JA TILAA NÄYTTÖ!
Ilmainen palvelu tilanhakijoille.
Kartoitamme parhaat tilavaihtoehdot.
Kaikki kohteet eivät ole netissä.
Pyydä lisätietoa
