Vuokrataan tuotantotilat, varastotilat, työtilat - Tuusula
Majavantie 10, 04320 Tuusula #10626632
MONITOIMITILA on helposti räätälöitävä ja asiakaslähtöinen, monenlaiseen toimintaan soveltuva toimitilaratkaisu PK-yrityksille.
Iso nosto-ovi. Tilan vapaa korkeus 6m. Isot nosto-ovet ja erilliset käyntiovet.
Suositussa kohteessa vapaana kaksi tilakokonaisuutta:
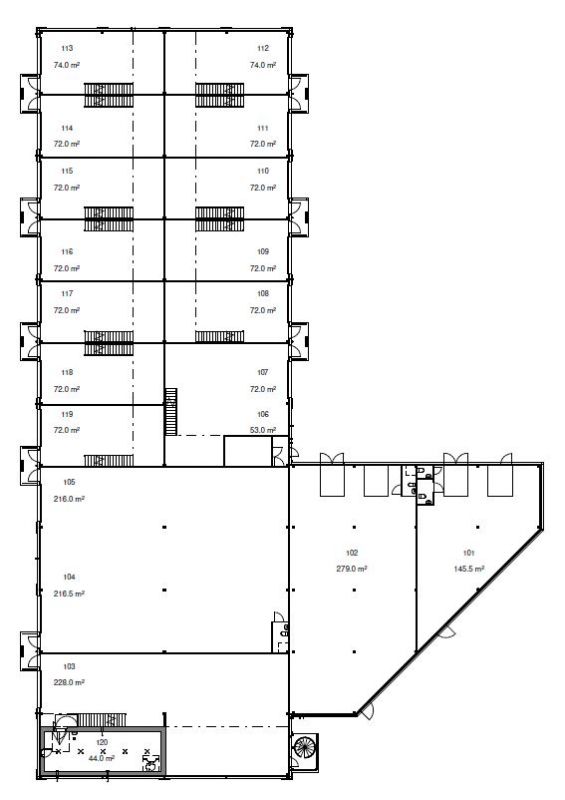
- Yhdistetty tila 183,5 m2, kaksi nosto-ovea ja erilliset käyntiovet. Päätytila.
- Yhdistetty 523m2 tila, joka voidaan jakaa 90,5m2 ja 432,5m2 suuruisiin kokonaisuuksiin. Kolme nosto-ovea, erilliset käyntiovet.
Huom. 432,5m2 tilan vapaakorkeus yli 6m , joten tila sopii erinomaisesti hyvin mm. varastointiin.
Soita ja sovi esittely
Hyvä sijainti mahdollistaa nopean liikkumisen joka suuntaan.
Alueella toimivat myös mm. Starkki, Cramo, Eläinlääkäri, Lounasravintola, Ramirent, Lidl, Teboil sekä Neste Oil. Lähistöllä myös huonekaluliikkeitä, kodintarvikkeita, autokauppoja, jne.
Arvot asiakkaalle:
* Yritysten muuttuviin tarpeisiin suunnitellut, helposti muunneltavat tilat
* Tilat joustavasti yhdisteltävissä suuremmiksikin kokonaisuuksiksi
* Varustelu helposti räätälöitävissä
* Soveltuvuus monenlaiseen toimintaan
* Tyylikkäät ja nykyaikaiset toimitilat
* Hyvä sijainti
* Kustannustehokkuus
Tutustu netissä: https://monitoimitilat.fi/monitoimitila/majavatie-10-tuusula/
Katutasossa
Näkyvällä paikalla
Jaettavissa
Conorin
Toimitilojen vuokraus ja myynti
Näytä puhelinnumero
09 - 612 2230
Toimisto
Valimotie 17-19
Helsinki
Kaikki vapaat tilamme:
vapaat.toimitilat.fi/conorin
Monitoimitilat -kiinteistöihin suunnitellut pohjaratkaisut mahdollistavat tilojen
muunneltavuuden. Myös talotekniikassa on valmiiksi huomioitu mahdolliset muutostarpeet. Näin tiloja voidaan muokata joustavasti käyttäjän tarpeiden mukaan tuotanto-, varasto-, toimisto- ja näyttelytiloiksi.
Kiinteistöjen ulkonäössä huomioidaan myös yritysten tarpeet edustavalle julkisivulle ja ympäristölle, ovathan toimitilat yrityksen käyntikortti.
Kohteissa voidaan hyödyntää yhtiöön vuosien mittaan kumuloitunut tietotaito monitoimitilojen toteutuksessa.
Tilojen korkeatasoinen varustelu mahdollistaa tilojen sopivuuden monille eri toimialoille ja toimijoille.
Arvot asiakkaalle:
* Yritysten muuttuviin tarpeisiin suunnitellut, helposti muunneltavat tilat
* Tilat joustavasti yhdisteltävissä suuremmiksikin kokonaisuuksiksi
* Varustelu helposti räätälöitävissä
* Soveltuvuus monenlaiseen toimintaan
* Tyylikkäät ja nykyaikaiset toimitilat
* Hyvä sijainti
* Kustannustehokkuus
