Vuokrataan toimistotilat - Espoo
Karaportti 5, Karamalmi, 02610 Espoo #10626556
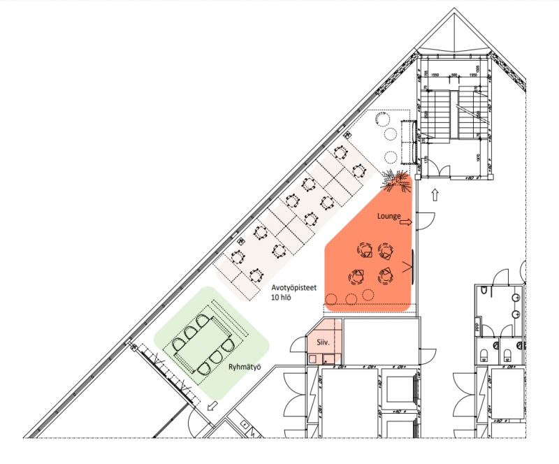
Vuokrattavana siistiä, valoisaa ja modernia toimistotilaa Espoossa.
Osoite
Karaportti 5, 02610 Espoo
Tilatyyppi
Toimistotilaa
136 m2
Kiinteistö
Vuokrattavana siistiä, valoisaa ja modernia toimistotilaa Espoossa. Toimistotila tullaan remontoimaan tulevan vuokralaisen tarpeiden mukaan.
Sijainti
Karamalmi, Espoo
Pysäköinti
Pihalla ja parkkihallissa
Palvelut
-Aulapalvelu
-Henkilöstöravintola,
-Saunatilat
-Henkilöstöravintola,
-Saunatilat
Kulkuyhteydet
-Bussi
-Lähijuna
-Oma auto
-Lähijuna
-Oma auto
Vapautuu
Heti
Kerros
2
Energiatehokkuusluokka
Ei lain edellyttämää energiatodistusta
Näkyvällä paikalla
Hissi
Ota yhteyttä
REALIUM OY LKV
Tammasaarenkatu 1, 00180 Helsinki
Vaihde:
Näytä puhelinnumero
010 326 346
Tuomo Mäkelä
tuomo.makela@realium.fi
p.
Näytä puhelinnumero
044 050 1158
Joel Keto
joel.keto@realium.fi
p.
Näytä puhelinnumero
045 317 0330
KAIKKI TILAVAIHTOEHDOT KERRALLA!
SOITA - MEILAA JA TILAA NÄYTTÖ!
Ilmainen palvelu tilanhakijoille.
Kartoitamme parhaat tilavaihtoehdot.
Kaikki kohteet eivät ole netissä.
Pyydä lisätietoa
