Vuokrataan toimistotilat - Helsinki
Kiviaidankatu 2, Lauttasaari, 00210 Helsinki #10625828
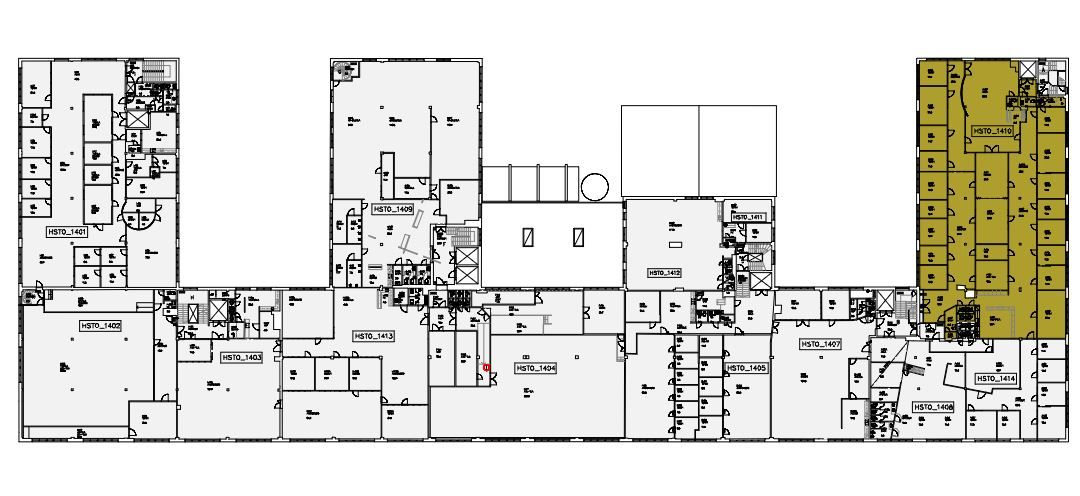
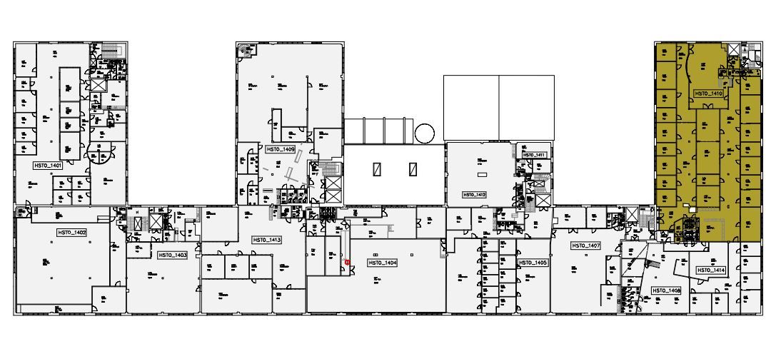
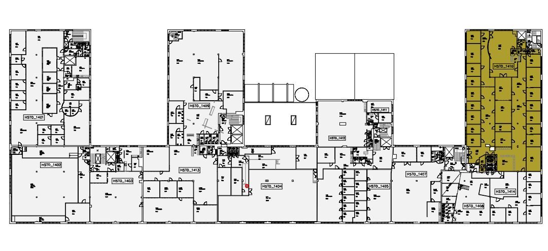
Vuokrattava toimistotila, jossa on eri kokoisia työhuoneita, neuvottelutiloja ja hyvä sosiaali- / oleskelutilat. Tähän toimitilaan saa nykymuodossaan 30-35 työpistettä 1-6 hengen työhuoneissa. Muutostyöt ovat mahdollisia. Tarvittaessa tila on myös jaettavissa kahdeksi eri huoneistoksi. Ohessa kuvia kiinteistön tiloista.
Kiviaidankatu 2 on toimitilakiinteistö erinomaisella paikalla Helsingin Lauttasaaressa.
Kiviaidankatu on helposti saavutettavissa niin julkisilla kuin autollakin. Länsimetro tekee työmatkan sujuvaksi useasta eri suunnasta ja lähin asema löytyy alle kilometrin päästä kiinteistöstä. Kiinteistön lähelle kulkevat myös bussit metroasemalta. Rakennuksessa on päivittäistavarakauppa ja lähistöltä löytyy useita eri lounasravintoloita jokaiseen makuun.
Toimistotilat ovat muokattavissa ja remontoitavissa yrityksesi yksilöllisiin tarpeisiin. Monipuolista toimistotilaa erilaisille ja erikokoisille yrityksille, mahdollista muokata tilat esimerkiksi avotoimistoksi, tai pienempiin työhuoneisiin ja kokoushuoneisiin. Kiinteistöstä on mahdollisuus vuokrata varastotilaa, sekä mahdollisuus vuokrata tilaa myymälälle, kiinteistöstä löytyy myös tavarahissi.
Lisätietoja saat numerosta 020 7290 710. Lisää kohteita osoitteessa premises.fi.
Energialuokka E.Kerros: 4
CRE PREMISES
Puh. Näytä puhelinnumero 020 7290 710
Vantaankoskentie 14
01670 VANTAA
