Vuokrataan toimistotilat - Helsinki
Tammasaarenkatu 1-7, Ruoholahti, 00180 Helsinki #10621908
Vuokrattavana kompaktia, siistiä toimistotilaa.
Osoite
Tammasaarenkatu 1-7, 00180 Helsinki
Tilatyyppi
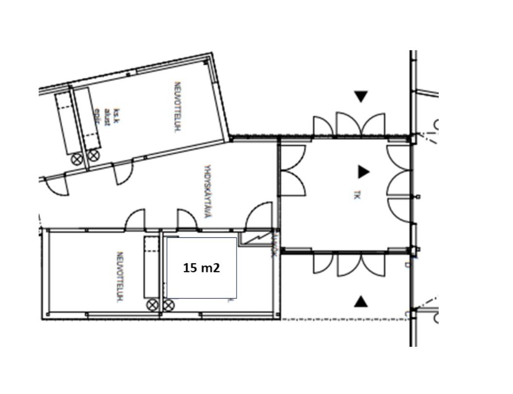
Toimistotilaa
15 m2
Kiinteistö
Vuokrattavana kompaktia, siistiä toimistotilaa.
Sijainti
Ruoholahti, Helsinki
Pysäköinti
Autohalli ja kadulla olevat pysäköintialueet.
Palvelut
-Aulapalvelut
-Lounasravintoloita 2 kpl
-Vuokrattavia neuvottelutiloja
-Saunaosasto
-Kuntosali
-Lounasravintoloita 2 kpl
-Vuokrattavia neuvottelutiloja
-Saunaosasto
-Kuntosali
Kulkuyhteydet
-Metro
-Raitiovaunu
-Bussi
-Oma auto
-Raitiovaunu
-Bussi
-Oma auto
Vapautuu
Heti
Kerros
1
Energiatehokkuusluokka
Ei lain edellyttämää energiatodistusta
Näkyvällä paikalla
Hissi
Ota yhteyttä
REALIUM OY LKV
Tammasaarenkatu 1, 00180 Helsinki
Vaihde:
Näytä puhelinnumero
010 326 346
Tuomo Mäkelä
tuomo.makela@realium.fi
p.
Näytä puhelinnumero
044 050 1158
Joel Keto
joel.keto@realium.fi
p.
Näytä puhelinnumero
045 317 0330
KAIKKI TILAVAIHTOEHDOT KERRALLA!
SOITA - MEILAA JA TILAA NÄYTTÖ!
Ilmainen palvelu tilanhakijoille.
Kartoitamme parhaat tilavaihtoehdot.
Kaikki kohteet eivät ole netissä.
Pyydä lisätietoa
