Vuokrataan/myydään liiketilat, tuotantotilat, varastotilat, työtilat, autotalli/-hallitilat, muut tilat - Heinola

Pohjanmäentie 3, 18100 Heinola #10617226

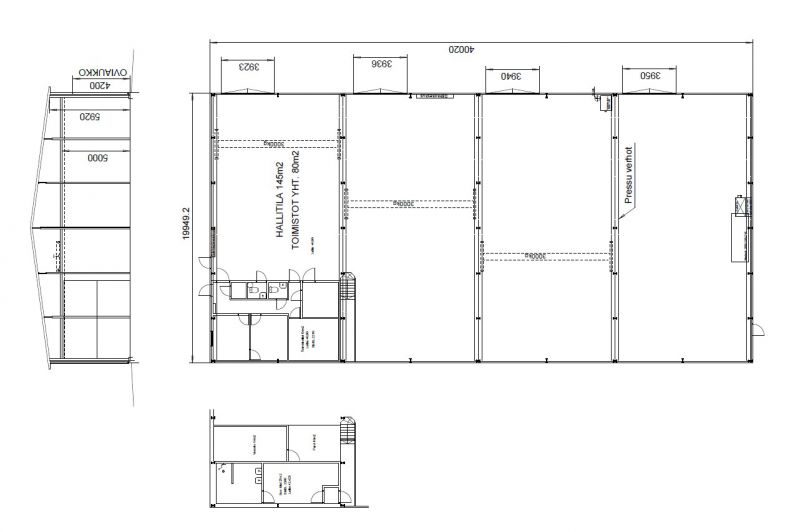
1980-luvulla rakennettu ja tämän jälkeen laajennettu teollisuustila, jossa ilmalämmitin
öljypolttimella. Tilassa on 3 kpl 2tn siltanostureita ja paineilmaverkosto.

Osoite
Pohjanmäentie 3, 18100 Heinola
Tilatyyppi
Liiketilaa
600 - 800 m2
Tuotantotilaa
600 - 800 m2
Varastotilaa
600 - 800 m2
Työtilaa
600 - 800 m2
Autotalli/-hallitilaa
600 - 800 m2
Muuta tilaa
600 - 800 m2
Yhteensä
600 - 800 m2
Tilajako
Jaettavissa
Kiinteistö
Kokonaispinta-ala 800 m², josta toimistotilaa n. 80 m². Tilan vapaa korkeus n. 5 m. Tila on aiemmin ollut konepajan käytössä.
Sijainti
Keskeisellä paikalla Heinolassa, hyvien liikenneyhteyksien lähellä. Matka Heinolan keskustaan 2 km. Naapurikiinteistöissä toimii mm. hydrauliikkaliike sekä työkaluliike.
Ympäristö
Piha pääosin asfaltoitu.
Muuta
Mahdollisuus ostaa myös viereinen 3500 m² tontti, jolla sijaitsee sähköistetty 75 m² varastorakennus, jossa 3 nosto-ovea.
Vapautuu
Kysy

Jaettavissa

Pyydä lisätietoa

Kohteesta Pohjanmäentie 3, Heinola

 

B2B palvelut

LASTAUSRATKAISUT

Mainos
Lastauksien ratkaisut tehokkaammin ja turvallisemmin

MARKKINOINTI

Tavoita oikea kohderyhmä!