Vuokrataan toimistotilat - Helsinki
Hämeentie 15, Sörnäinen, 00101 Helsinki #10613235
Näkyvällä paikalla ja hyvien liikenneyhteyksien äärellä vuokrattavana jäähdytetyllä ilmastoinnilla varustettu huoneisiin jaettu toimistotila, joka räätälöidään käyttäjän tarpeet ja toiveet huomioiden. Kiinteistössä tilava autohalli. Ota yhteyttä ja sovi esittely, vuokrauspalvelumme on tilanhakijoille maksuton.
Osoite
Hämeentie 15, 00101 Helsinki
Tilatyyppi
Toimistotilaa
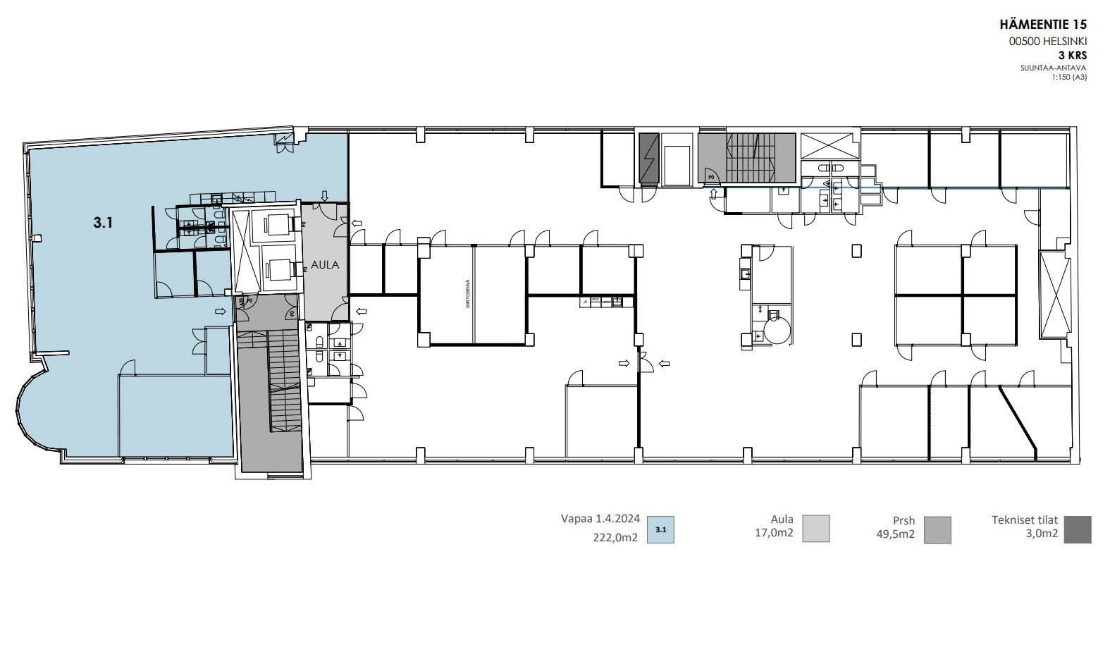
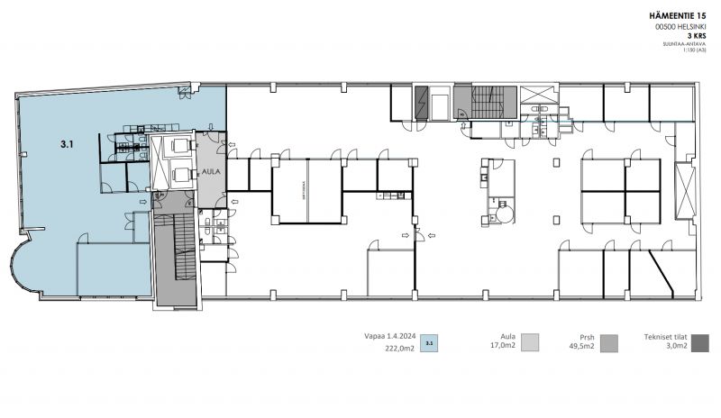
222 m2
Pohjapiirros
Kiinteistö
Toimistotalo
Sijainti
Kalllio-Sörkka, Hämeentien varrella.
Pysäköinti
Autohallissa
Palvelut
Lähellä
Kulkuyhteydet
Bussit, ratikat, Sörnäisten metroasema
Vapautuu
Heti
Kerros
4 / 7
Energiatehokkuusluokka
Ei lain edellyttämää energiatodistusta
Näkyvällä paikalla
Hissi
Liitetiedostot
Ota yhteyttä
Senaatin Notariaatti Oy LKV
Lämmittäjänkatu 4 A
FIN-00880 Helsinki
Tel:
Näytä puhelinnumero
+358 9 7745 100
Pyydä lisätietoa
