Vuokrataan toimistotilat - Espoo
Kutojantie 7, Kilo, 02630 Espoo #10605253
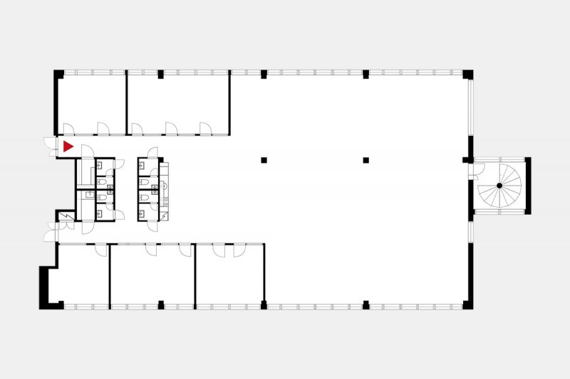
Vuokrattavana hyvää, valoisaa, siistiä ja jäähdytettyä toimistotilaa.
Osoite
Kutojantie 7, 02630 Espoo
Tilatyyppi
Toimistotilaa
462 m2
Kiinteistö
Vuokrattavana hyvää, valoisaa, siistiä ja jäähdytettyä toimistotilaa. Kerroksiin on tavarahissiyhteys ja kellarikerroksesta on vuokrattavissa pienvarastotilaa.
Sijainti
Kilo, Espoo
Pysäköinti
Autopaikkoja tarjolla runsaasti piha-alueella sekä muutamia paikkoja autokatoksessa.
Palvelut
-Vuokrattavia neuvottelutiloja
-Saunatilat
-Saunatilat
Kulkuyhteydet
-Bussipysäkki 400 m.
-Juna-asema 600 m.
-Juna-asema 600 m.
Vapautuu
Heti
Kerros
1
Energiatehokkuusluokka
Ei lain edellyttämää energiatodistusta
Näkyvällä paikalla
Hissi
Ota yhteyttä
REALIUM OY LKV
Tammasaarenkatu 1, 00180 Helsinki
Vaihde:
Näytä puhelinnumero
010 326 346
Tuomo Mäkelä
tuomo.makela@realium.fi
p.
Näytä puhelinnumero
044 050 1158
Joel Keto
joel.keto@realium.fi
p.
Näytä puhelinnumero
045 317 0330
KAIKKI TILAVAIHTOEHDOT KERRALLA!
SOITA - MEILAA JA TILAA NÄYTTÖ!
Ilmainen palvelu tilanhakijoille.
Kartoitamme parhaat tilavaihtoehdot.
Kaikki kohteet eivät ole netissä.
Pyydä lisätietoa
