Vuokrataan toimistotilat - Helsinki
Hitsaajankatu 4, Herttoniemi, 00810 Helsinki #10603568
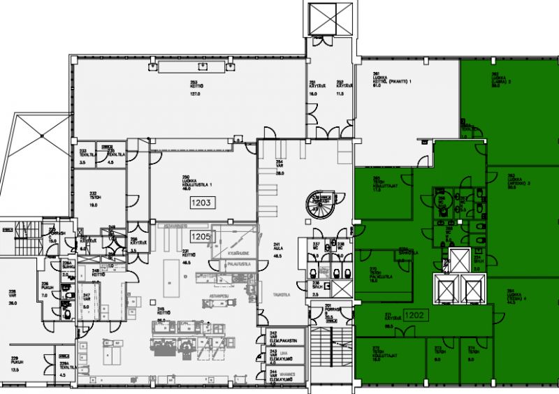
Vuokrattavana opetustilaa, jossa on 4 luokkaa.
Osoite
Hitsaajankatu 4, 00810 Helsinki
Tilatyyppi
Toimistotilaa
324 m2
Tilajako
Jaettavissa
Tila soveltuu
Koulutus
Kiinteistö
Vuokrattavana tilavaa toimitila, joka soveltuu hyvin esimerkiksi koulutustilaksi. Tilassa on neljä luokkatilaa ja muutama toimistohuone. Yhdistettävissä viereisen keittiötilan kanssa.
Sijainti
Herttoniemi, Helsinki
Pysäköinti
Autopaikat pihalla.
Palvelut
Herttoniemen palvelut.
Kulkuyhteydet
- Metro
- Bussi
- Oma auto
- Bussi
- Oma auto
Vapautuu
Heti
Kerros
2
Energiatehokkuusluokka
Ei lain edellyttämää energiatodistusta
Näkyvällä paikalla
Jaettavissa
Hissi
Ota yhteyttä
REALIUM OY LKV
Tammasaarenkatu 1, 00180 Helsinki
Vaihde:
Näytä puhelinnumero
010 326 346
Tuomo Mäkelä
tuomo.makela@realium.fi
p.
Näytä puhelinnumero
044 050 1158
Joel Keto
joel.keto@realium.fi
p.
Näytä puhelinnumero
045 317 0330
KAIKKI TILAVAIHTOEHDOT KERRALLA!
SOITA - MEILAA JA TILAA NÄYTTÖ!
Ilmainen palvelu tilanhakijoille.
Kartoitamme parhaat tilavaihtoehdot.
Kaikki kohteet eivät ole netissä.
Pyydä lisätietoa
