Vuokrataan toimistotilat - Helsinki
Pasilanraitio 5, Pasila, 00240 Helsinki #10594888
Vuokrataan toimistotilaa Pasilan modernissa ympäristössä lähellä rautatieasemaa ja julkisen liikenteen solmukohtaa. Tilassa on tällä hetkellä runsaasti huoneita, mutta tilat voidaan myös avata moderniksi monitilatoimistoksi. Ota yhteyttä ja sovi esittely, vuokrauspalvelumme on tilanhakijoille maksuton.
Osoite
Pasilanraitio 5, 00240 Helsinki
Tilatyyppi
Toimistotilaa
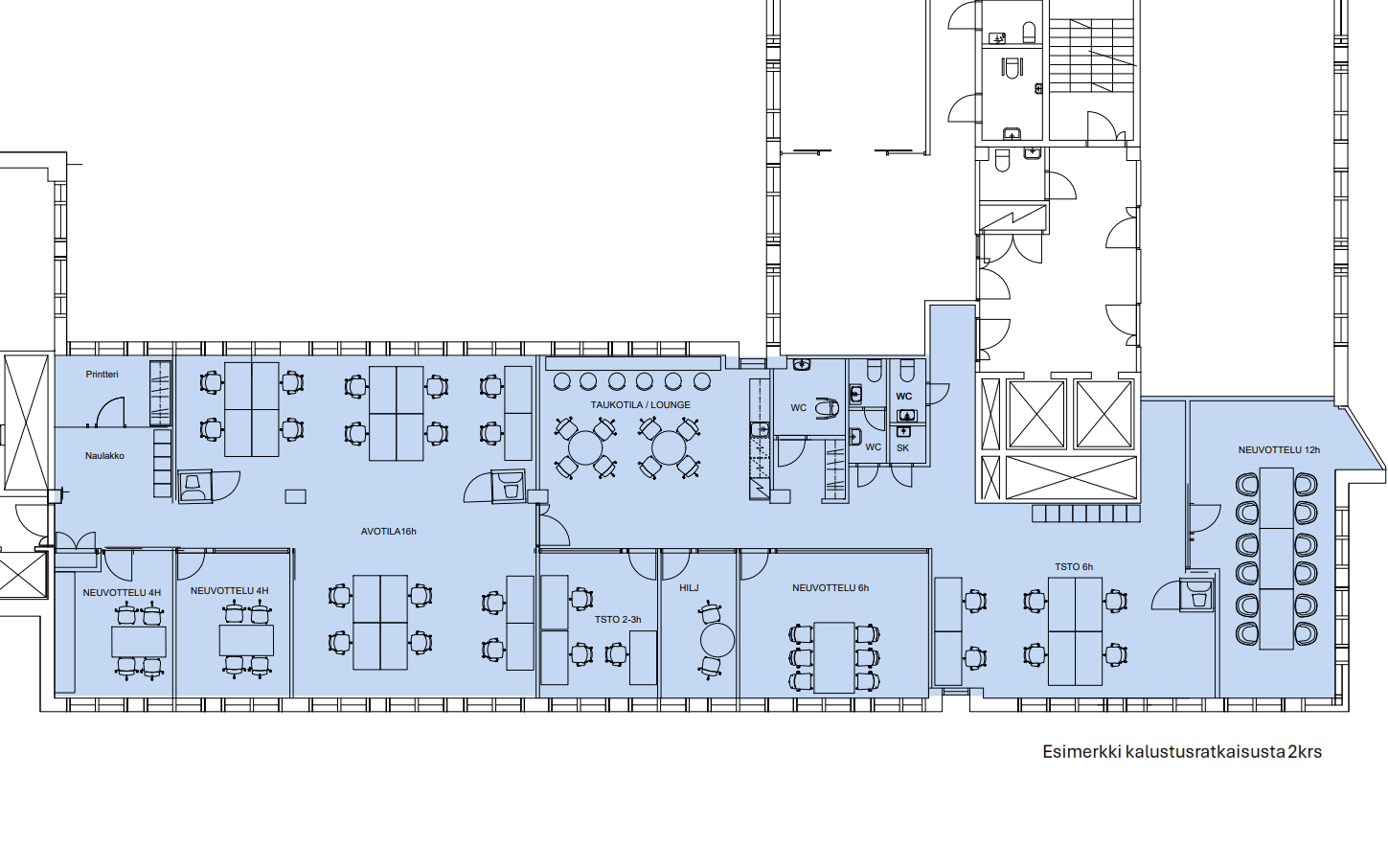
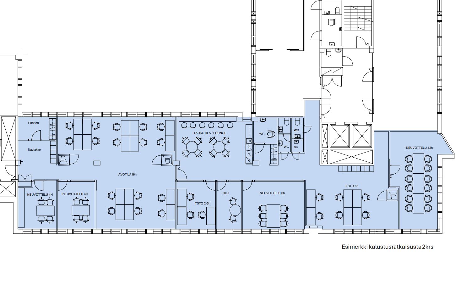
360 m2
Pohjapiirros
Kiinteistö
Rakennuksen palveluihin kuuluu mm. aulapalvele ja ravintola. Hyvinvointi on huomioituna laadukkaan pyöräparkin, sosiaalitilojen ja vuokralaisille maksuttoman kuntosalin muodossa.
Sijainti
Pasila
Pysäköinti
Loistavien julkisten liikennevälineyhteyksien lisäksi talossa on myös autoilijoille oma pysäköintihalli sekä lisäpaikkoja läheisessä pysäköintilaitoksessa.
Kulkuyhteydet
Raitiovaunut, juna, bussit.
Vapautuu
Heti
Kerros
2
Energiatehokkuusluokka
Ei lain edellyttämää energiatodistusta
Hissi
Ota yhteyttä
Senaatin Notariaatti Oy LKV
Lämmittäjänkatu 4 A
FIN-00880 Helsinki
Tel:
Näytä puhelinnumero
+358 9 7745 100
Pyydä lisätietoa
