Vuokrataan toimistotilat - Tampere
Finlaysoninkatu 5, 33210 Tampere #10593383
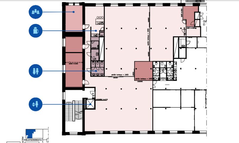
Vuokrattavana kolmannen kerroksen siistiä toimistotilaa Finlaysonin alueella.
Osoite
Finlaysoninkatu 5, 33210 Tampere
Tilatyyppi
Toimistotilaa
524 m2
Kiinteistö
Vuokrattavana kolmannen kerroksen siistiä toimistotilaa Finlaysonin alueella. Toimistotila on jaettu kolmeen suurempaan toimistoalueeseen, joiden lisäksi on muutama neuvotteluhuone. Oma keittiö ja useampi WC.
Sijainti
Tampereen keskusta
Pysäköinti
oma yli 600 autopaikan pysäköintilaitos P-Plevna
Palvelut
Keskustan palvelut
Kulkuyhteydet
Erinomaiset yhteydet niin omalla autolla kuin julkisilla liikennevälineilläkin.
Juna-asema 700m
Lentoasema 11,9km
Juna-asema 700m
Lentoasema 11,9km
Vapautuu
Heti
Kerros
3
Energiatehokkuusluokka
Ei lain edellyttämää energiatodistusta
Näkyvällä paikalla
Hissi
Ota yhteyttä
REALIUM OY LKV
Tammasaarenkatu 1, 00180 Helsinki
Vaihde:
Näytä puhelinnumero
010 326 346
Tuomo Mäkelä
tuomo.makela@realium.fi
p.
Näytä puhelinnumero
044 050 1158
Joel Keto
joel.keto@realium.fi
p.
Näytä puhelinnumero
045 317 0330
KAIKKI TILAVAIHTOEHDOT KERRALLA!
SOITA - MEILAA JA TILAA NÄYTTÖ!
Ilmainen palvelu tilanhakijoille.
Kartoitamme parhaat tilavaihtoehdot.
Kaikki kohteet eivät ole netissä.
Pyydä lisätietoa
