Vuokrataan toimistotilat, varastotilat - Helsinki
Kiviaidankatu 2, Lauttasaari, 00210 Helsinki #10586567
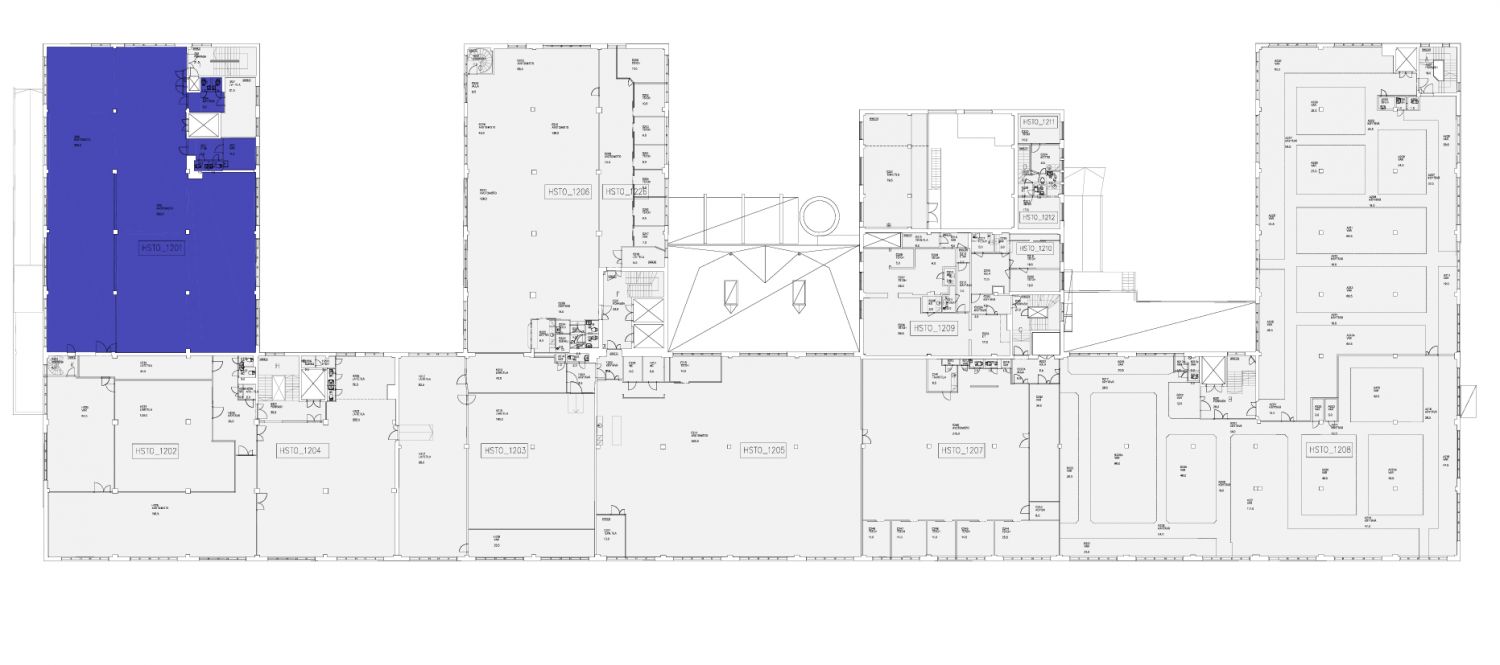
Vuokrattavana valoisaa toimistotilaa, joka koostuu avotilasta ja työhuoneista.
Osoite
Kiviaidankatu 2, 00210 Helsinki
Tilatyyppi
Toimistotilaa
642,5 m2
Varastotilaa
642,5 m2
Yhteensä
642,5 m2
Tilajako
Jaettavissa
Kiinteistö
Vuokrattavana valoisaa toimistotilaa, joka koostuu avotilasta ja työhuoneista. Tilaratkaisu on tarvittaessa jaettavissa kahden käyttäjän kesken.
Tilassa tavarahissi ja lastauslaituri.
Tilassa tavarahissi ja lastauslaituri.
Sijainti
Lauttasaari, Helsinki
Pysäköinti
Autopaikkoja pihalla ja hallissa.
Kulkuyhteydet
- Metro
- Bussi
- Oma auto
- Bussi
- Oma auto
Vapautuu
Heti
Kerros
2
Energiatehokkuusluokka
Ei lain edellyttämää energiatodistusta
Näkyvällä paikalla
Jaettavissa
Hissi
Lastauslaituri
Ota yhteyttä
REALIUM OY LKV
Tammasaarenkatu 1, 00180 Helsinki
Vaihde:
Näytä puhelinnumero
010 326 346
Tuomo Mäkelä
tuomo.makela@realium.fi
p.
Näytä puhelinnumero
044 050 1158
Joel Keto
joel.keto@realium.fi
p.
Näytä puhelinnumero
045 317 0330
KAIKKI TILAVAIHTOEHDOT KERRALLA!
SOITA - MEILAA JA TILAA NÄYTTÖ!
Ilmainen palvelu tilanhakijoille.
Kartoitamme parhaat tilavaihtoehdot.
Kaikki kohteet eivät ole netissä.
Pyydä lisätietoa
