Vuokrataan toimistotilat, varastotilat - Helsinki
Kiviaidankatu 2, Lauttasaari, 00210 Helsinki #10583693
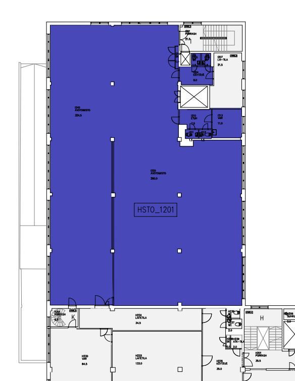
Talon länsipäädyssä sijaitseva valoisa huoneisto, joka koostuu avotilasta ja työhuoneista.Tilaratkaisu on tarvittaessa jaettavissa kahden käyttäjän kesken.
Talon länsipäädyssä sijaitseva valoisa huoneisto, joka koostuu avotilasta ja työhuoneista. Tilaratkaisu on tarvittaessa muokattavissa ja jaetavissa tulevan käyttäjän tarpeita vastaavaksi. Tilaan on lastauslaituri- ja tavarahissiyhteys.
Lisätietoja saat numerosta 020 7290 710. Lisää kohteita osoitteessa premises.fi.
Energialuokka E.Kerros: 2
Osoite
Kiviaidankatu 2, 00210 Helsinki
Tilatyyppi
Toimistotilaa
642,5 m2
Varastotilaa
642,5 m2
Yhteensä
642,5 m2
Kulkuyhteydet
Helsingin Lauttasaareen hyvät bussiyhteydet keskustasta. Läheinen Länsiväylä takaa sujuvat yhteydet Helsingin keskustaan sekä Espoon suuntaan.
Liitetiedostot
Ota yhteyttä
CRE PREMISES
Puh. Näytä puhelinnumero 020 7290 710
Vantaankoskentie 14
01670 VANTAA
Pyydä lisätietoa
