Vuokrataan toimistotilat - Riihimäki
Konepajankatu 2, Mattila, 11710 Riihimäki #10579020
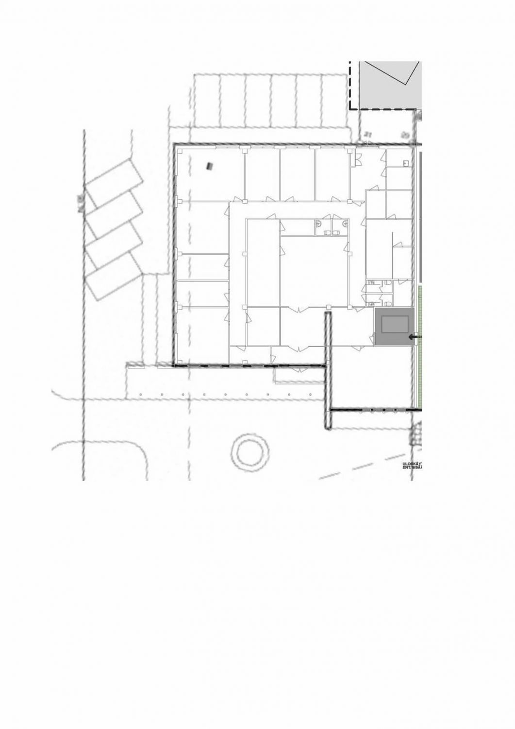
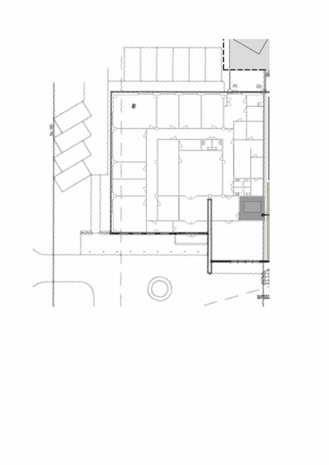
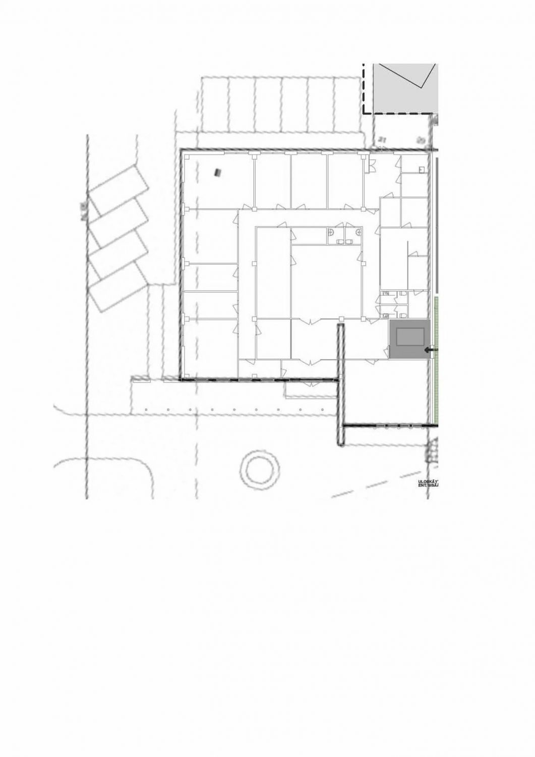
Riihimäen Mattilanpuistossa osoitteessa Konepajankatu 2 sijaitsevassa kiinteistössä vuokrattavana tilaa. Vuokrattava suuri 467m2 toimistotila sijaitsee ensinmäisessä kerroksessa.
Lisätietoja 020 7290 710, lisää kohteita www.premises.fi
Energialuokka FKerros: 1
Osoite
Konepajankatu 2, 11710 Riihimäki
Tilatyyppi
Toimistotilaa
467 m2
Liitetiedostot
Ota yhteyttä
CRE PREMISES
Puh. Näytä puhelinnumero 020 7290 710
Vantaankoskentie 14
01670 VANTAA
Pyydä lisätietoa
