Vuokrataan toimistotilat - Helsinki
Osmontie 38, Käpylä, 00610 Helsinki #10572656
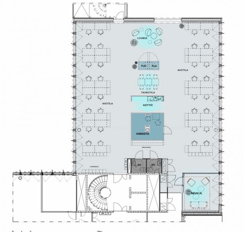
Vuokrattavana uutta, avaraa, korkeatasoista ja valoisaa kombitoimistotilaa, jossa on yksi neuvotteluhuone.
Osoite
Osmontie 38, 00610 Helsinki
Tilatyyppi
Toimistotilaa
336 m2
Tilajako
Jaettavissa
Laajennettavissa
Kiinteistö
Vuokrattavana uutta, avaraa, korkeatasoista ja valoisaa kombitoimistotilaa, jossa on yksi neuvotteluhuone. Mahdollista rakentaa muutama toimistohuone. Tarvittaessa mahdollista vuokrata myös koko kerros.
Sijainti
Käpylä, Helsinki
Pysäköinti
Parkkitilaa autohallissa sekä rakennuksen takana olevalla parkkikannella.
Palvelut
K-Supermarket noin 200 metrin päässä lähialueella.
Kulkuyhteydet
-Raitiovaunupysäkki 680 m
-Bussipysäkki 230 m
-Juna-asema 360 m
-Bussipysäkki 230 m
-Juna-asema 360 m
Vapautuu
Heti
Kerros
2
Energiatehokkuusluokka
Ei lain edellyttämää energiatodistusta
Näkyvällä paikalla
Jaettavissa
Hissi
Ota yhteyttä
REALIUM OY LKV
Tammasaarenkatu 1, 00180 Helsinki
Vaihde:
Näytä puhelinnumero
010 326 346
Tuomo Mäkelä
tuomo.makela@realium.fi
p.
Näytä puhelinnumero
044 050 1158
Joel Keto
joel.keto@realium.fi
p.
Näytä puhelinnumero
045 317 0330
KAIKKI TILAVAIHTOEHDOT KERRALLA!
SOITA - MEILAA JA TILAA NÄYTTÖ!
Ilmainen palvelu tilanhakijoille.
Kartoitamme parhaat tilavaihtoehdot.
Kaikki kohteet eivät ole netissä.
Pyydä lisätietoa
