Vuokrataan liiketilat - Lahti
Aleksanterinkatu 25, Keskusta, 15140 Lahti #10572463
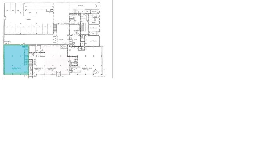
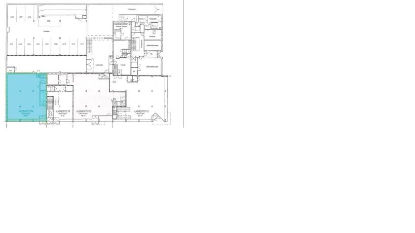
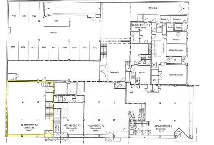
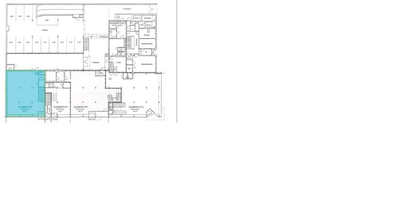
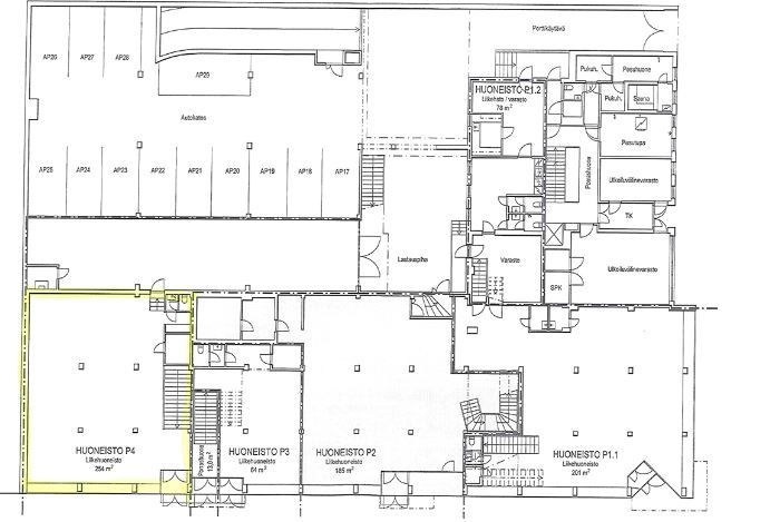
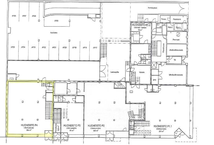
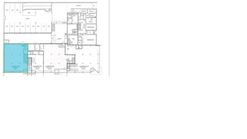
Vuokrattavana katutason liiketila Lahden keskustassa, näkyvällä sijainnilla kauppakeskus Trioa vastapäätä. Tila ei sovellu ravintolakäyttöön.
Katutason liiketilassa (254 m2) isot näyteikkunat kadulle. Liiketilan alakerrassa on 431m2 tilaa, joka soveltuu varastokäyttöön.
Lisätietoja kohteesta: 020 7290 710,
www.premises.fi
Energialuokka D.Kerros: 1
Osoite
Aleksanterinkatu 25, 15140 Lahti
Tilatyyppi
Liiketilaa
254 m2
Ota yhteyttä
CRE PREMISES
Puh. Näytä puhelinnumero 020 7290 710
Vantaankoskentie 14
01670 VANTAA
Pyydä lisätietoa
