Vuokrataan toimistotilat - Helsinki
Iso Roobertinkatu 4, Punavuori, 00120 Helsinki #10558655
Siistiä toimistotilaa mainiolla paikalla Helsingin Punavuoressa.
Osoite
Iso Roobertinkatu 4, 00120 Helsinki
Tilatyyppi
Toimistotilaa
189 m2
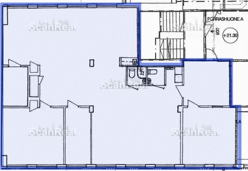
Pohjapiirros
Kiinteistö
Siistiä toimistotilaa mainiolla paikalla Helsingin Punavuoressa.
- Kiinteistön tekniikka saneerattu v. 2009
- Pohjaratkaisu muokattavissa
- Jäähdytys
- Cat6-kaapelointi
- Kiinteistön tekniikka saneerattu v. 2009
- Pohjaratkaisu muokattavissa
- Jäähdytys
- Cat6-kaapelointi
Pysäköinti
Autopaikkoja pihalla. Lähellä mm. Erottajankadun Q-Park.
Palvelut
Monipuoliset palvelut lähiympäristössä.
Kulkuyhteydet
Metroasema 1 km, Raitiovaunupysäkki 100 m, Bussipysäkki 100 m, Juna-asema 1 km, Lentoasema 21,6 km
Vapautuu
Heti
Rakennusvuosi
1968
Saneerausvuosi
2009
Kerros
4
Energiatehokkuusluokka
Ei lain edellyttämää energiatodistusta
Näkyvällä paikalla
Hissi
Ota yhteyttä
ScanReal Oy LKV
Opus Business Park
Hitsaajankatu 24
00810 Helsinki
info@scanreal.fi
Puh:
Näytä puhelinnumero
020 730 8830
Sopivat toimitilat yhdellä otolla!
Kartoitamme toimitilatarpeesi ja etsimme yrityksellesi parhaiten sopivat vapaat toimitilat. Koska vuokranantajat maksavat palvelumme, on tämä yrityksellesi veloituksetonta.
OTA YHTEYTTÄ - SOVI NÄYTTÖ!
Kaikki kohteemme eivät ole netissä, kerro tilatarpeesi niin kartoitamme vaihtoehdot.
Palvelumme on tilanhakijalle ilmainen
Pyydä lisätietoa
