Vuokrataan toimistotilat - Helsinki
Fredrikinkatu 34, Keskusta, 00101 Helsinki #10544172
Vuokrattavana hyvätasoista, asiallista ja siistiä toimisto-studiotilaa erinomaisella sijainnilla.
Osoite
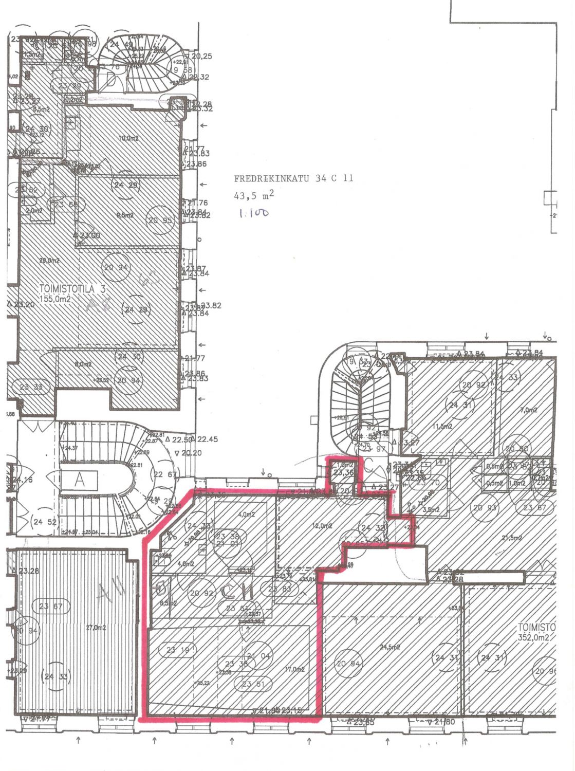
Fredrikinkatu 34, 00101 Helsinki
Tilatyyppi
Toimistotilaa
43,5 m2
Tila soveltuu
Tulityötila
Kiinteistö
Kampissa vuokrattavana hyvätasoista, asiallista ja siistiä toimistotilaa erinomaisella paikalla. Toimistotila on kunnostettu, käsittäen kaksi huonetta, tila on äänieristetty. Toimistotilassa on palkkijäähdytys (kaukokylmä). Sopii mm. studiokäyttöön.
Sijainti
Helsingin keskusta.
Pysäköinti
Alueen pysäköintilaitokset ja yrityspysäköintitunnus.
Palvelut
Kaikki palvelut lähialueella.
Kulkuyhteydet
-Bussi
-Raitiovaunu
-Metro
-Oma auto
-Raitiovaunu
-Metro
-Oma auto
Vapautuu
Heti
Kerros
2
Energiatehokkuusluokka
Ei lain edellyttämää energiatodistusta
Näkyvällä paikalla
Hissi
Ota yhteyttä
REALIUM OY LKV
Tammasaarenkatu 1, 00180 Helsinki
Vaihde:
Näytä puhelinnumero
010 326 346
Tuomo Mäkelä
tuomo.makela@realium.fi
p.
Näytä puhelinnumero
044 050 1158
Joel Keto
joel.keto@realium.fi
p.
Näytä puhelinnumero
045 317 0330
KAIKKI TILAVAIHTOEHDOT KERRALLA!
SOITA - MEILAA JA TILAA NÄYTTÖ!
Ilmainen palvelu tilanhakijoille.
Kartoitamme parhaat tilavaihtoehdot.
Kaikki kohteet eivät ole netissä.
Pyydä lisätietoa
