Vuokrataan tuotantotilat, varastotilat - Helsinki
Ormuspellontie 2, Malmi, 00700 Helsinki #10542858
Autolla-sisään tuotanto- / varastotilaa erinomaisella paikalla. Iso piha ja hyvät liikenneyhteydet.
Osoite
Ormuspellontie 2, 00700 Helsinki
Tilatyyppi
Tuotantotilaa
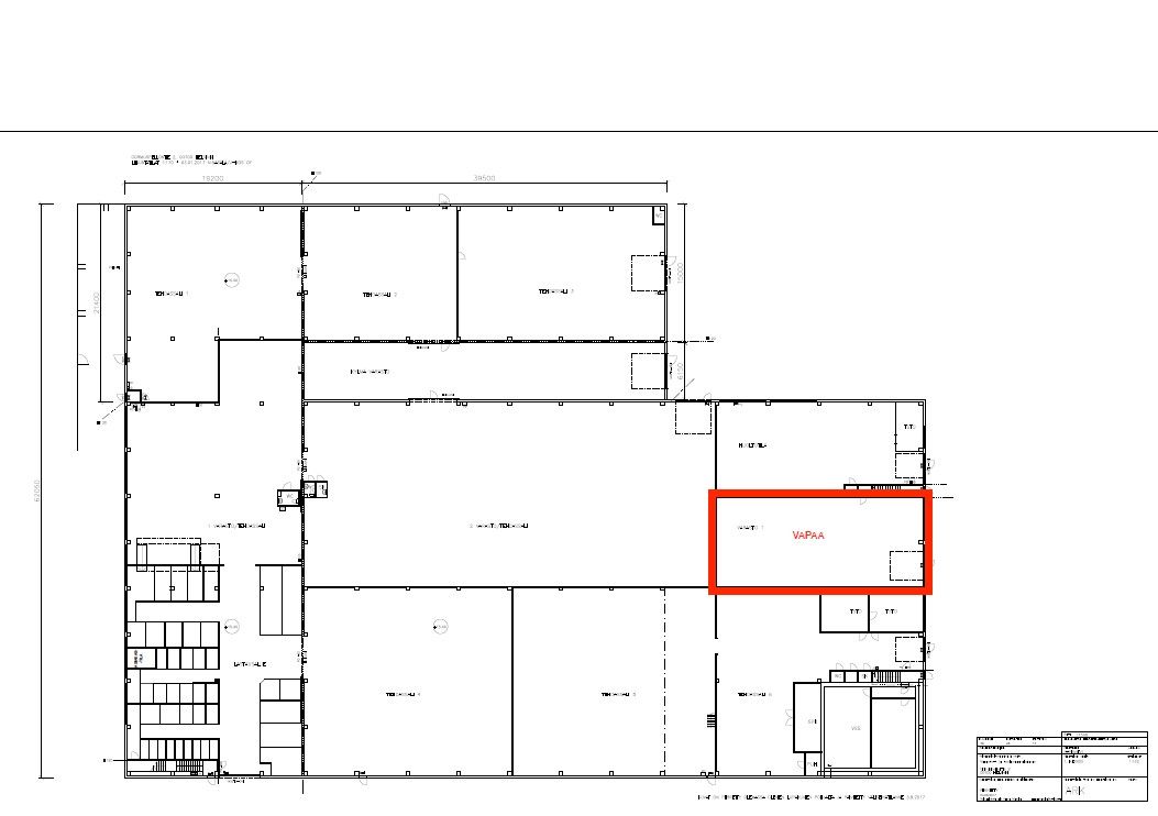
210 m2
Varastotilaa
210 m2
Yhteensä
210 m2
Tilajako
.
Vuokra
2600 eur/kk+alv
Vuokraan sisältyy lämpö
Sijainti
Malmin työpaikka-alue
Pysäköinti
Pihalla ja kadulla
Palvelut
Malmin Nova ja muut alueen monipuoliset palvelut
Kulkuyhteydet
Hyvät julkiset kulkuyhteydet ja hyvä saavutettavuus yksityisautolla.
Muuta
Autolla sisään monitoimitilaa 210 m2 isolla aidatulla tontilla Malminkaaren varrella. Erinomaiset liikenneyhteydet.
Sähkökäyttöinen nosto-ovi. Voimavirta on, lattiakaivoja ei ole. WC on.
Pihalla parkkitilaa.
Vapautuu sopimuksen mukaan.
Sovi esittely, 040 5588 226 Koistinen tai tapio@realsale.fi
Sähkökäyttöinen nosto-ovi. Voimavirta on, lattiakaivoja ei ole. WC on.
Pihalla parkkitilaa.
Vapautuu sopimuksen mukaan.
Sovi esittely, 040 5588 226 Koistinen tai tapio@realsale.fi
Vapautuu
sopimuksen mukaan
Katutasossa
Näkyvällä paikalla
Ota yhteyttä
Pyydä lisätietoa
