Vuokrataan toimistotilat, varastotilat, työtilat - Helsinki
Sorvaajankatu 11 a, Herttoniemi, 00880 Helsinki #10538638
Vuokrattavana Herttoniemessä työ-/tuotanto- ja varastotiloja hyvällä sijainnilla.
Osoite
Sorvaajankatu 11 a, 00880 Helsinki
Tilatyyppi
Toimistotilaa
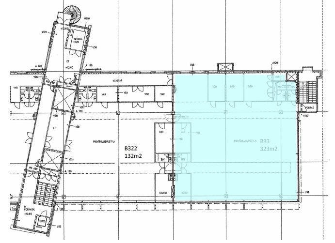
323 m2
Varastotilaa
323 m2
Työtilaa
323 m2
Yhteensä
323 m2
Kiinteistö
Vuokrattavana Herttoniemessä työ-/tuotanto- ja varastotiloja hyvällä sijainnilla.
Sijainti
Herttoniemi, Helsinki
Pysäköinti
Kiinteistön pihalla pysäköintitilaa ja lisäksi kadunvarrella.
Palvelut
Kauppakeskus MegaHertsin palvelut lähialueella.
Lounasravintola viereisessä Marimekon kiinteistössä.
Lounasravintola viereisessä Marimekon kiinteistössä.
Kulkuyhteydet
-Bussi
-Oma auto
-Oma auto
Muuta
Kiinteistössä on tavarahissi, josta yhteydet jokaiseen kerrokseen. Lastauslaituri/tila katoksen alla.
Vapautuu
Heti
Kerros
3
Energiatehokkuusluokka
Ei lain edellyttämää energiatodistusta
Näkyvällä paikalla
Hissi
Ota yhteyttä
REALIUM OY LKV
Tammasaarenkatu 1, 00180 Helsinki
Vaihde:
Näytä puhelinnumero
010 326 346
Tuomo Mäkelä
tuomo.makela@realium.fi
p.
Näytä puhelinnumero
044 050 1158
Joel Keto
joel.keto@realium.fi
p.
Näytä puhelinnumero
045 317 0330
KAIKKI TILAVAIHTOEHDOT KERRALLA!
SOITA - MEILAA JA TILAA NÄYTTÖ!
Ilmainen palvelu tilanhakijoille.
Kartoitamme parhaat tilavaihtoehdot.
Kaikki kohteet eivät ole netissä.
Pyydä lisätietoa
