Vuokrataan toimistotilat, liiketilat, tuotantotilat - Espoo
Kiilaniityntie 1, Koskelo, 02920 Espoo #10536756
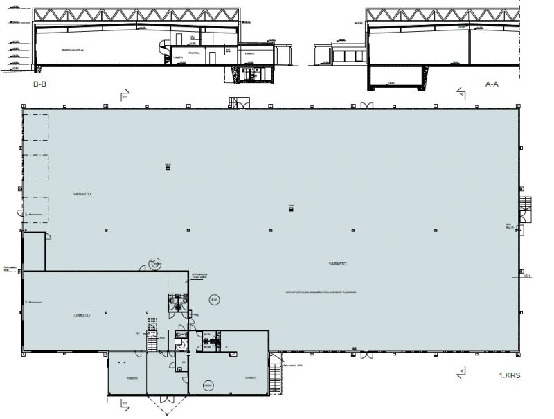
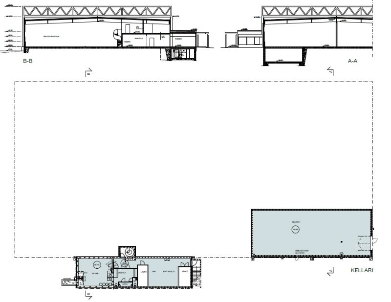
Espoon Koskelossa Kiilaniitytiellä tarjolla hyvää, yli 5 metriä korkeaa varasto-/toimisto-/liiketilaa.
Osoite
Kiilaniityntie 1, 02920 Espoo
Tilatyyppi
Toimistotilaa
3230 m2
Liiketilaa
3230 m2
Tuotantotilaa
3230 m2
Yhteensä
3230 m2
Kiinteistö
Espoon Koskelossa Kiilaniityntiellä tarjolla hyvää, yli 5 metriä korkeaa varasto-/toimisto-/liiketilaa. Kohteella on kaksi lastaustaskua, sisäänajoramppi, siistit toimistot ja mahdollisuus myymälätilaan. Varaston tavaraliikenne on mahdollista rakennuksen molemmista päädyistä.
Sijainti
Koskelo, Espoo
Pysäköinti
Laajat piha-alueet mahdollistavat sujuvan tavaraliikenteen ja rakennuksen vierellä on saatavilla pysäköintipaikkoja.
Palvelut
Lähialueen palvelut.
Kulkuyhteydet
-Bussi
-Oma auto
-Oma auto
Vapautuu
01.06.2026
Kerros
1.-2.
Energiatehokkuusluokka
Ei lain edellyttämää energiatodistusta
Katutasossa
Näkyvällä paikalla
Ota yhteyttä
REALIUM OY LKV
Tammasaarenkatu 1, 00180 Helsinki
Vaihde:
Näytä puhelinnumero
010 326 346
Tuomo Mäkelä
tuomo.makela@realium.fi
p.
Näytä puhelinnumero
044 050 1158
Joel Keto
joel.keto@realium.fi
p.
Näytä puhelinnumero
045 317 0330
KAIKKI TILAVAIHTOEHDOT KERRALLA!
SOITA - MEILAA JA TILAA NÄYTTÖ!
Ilmainen palvelu tilanhakijoille.
Kartoitamme parhaat tilavaihtoehdot.
Kaikki kohteet eivät ole netissä.
Pyydä lisätietoa
