Vuokrataan toimistotilat - Helsinki
Köydenpunojankatu 8 G, Kamppi, 00180 Helsinki #10533710
Vuokrattavana erittäin hyvää ja valoisaa toimistotilaa
Osoite
Köydenpunojankatu 8 G, 00180 Helsinki
Tilatyyppi
Toimistotilaa
163 m2
Kiinteistö
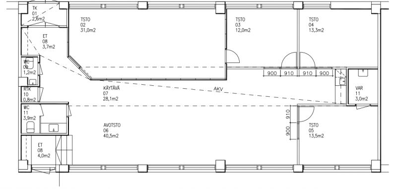
Taloyhtiön sisäpihalla vuokrattavana erittäin hyvää ja valoisaa toimistotilaa. Tilassa on avotila, 4 työhuoneetta, avokeittiö sekä wc-tila. Tilaan on oma sisäänkäynti sekä ulkoa että rapun puolelta.
Sijainti
Kamppi, Helsinki
Pysäköinti
Autohallipaikkoja vuokrattavissa.
Palvelut
Kampin palvelut.
Kulkuyhteydet
Hyvät julkiset yhteydet.
Vapautuu
Heti
Kerros
1
Energiatehokkuusluokka
Ei lain edellyttämää energiatodistusta
Katutasossa
Näkyvällä paikalla
Ota yhteyttä
REALIUM OY LKV
Tammasaarenkatu 1, 00180 Helsinki
Vaihde:
Näytä puhelinnumero
010 326 346
Tuomo Mäkelä
tuomo.makela@realium.fi
p.
Näytä puhelinnumero
044 050 1158
Joel Keto
joel.keto@realium.fi
p.
Näytä puhelinnumero
045 317 0330
KAIKKI TILAVAIHTOEHDOT KERRALLA!
SOITA - MEILAA JA TILAA NÄYTTÖ!
Ilmainen palvelu tilanhakijoille.
Kartoitamme parhaat tilavaihtoehdot.
Kaikki kohteet eivät ole netissä.
Pyydä lisätietoa
