Vuokrataan toimistotilat - Helsinki
Salomonkatu 17, Kamppi, 00100 Helsinki #10533696
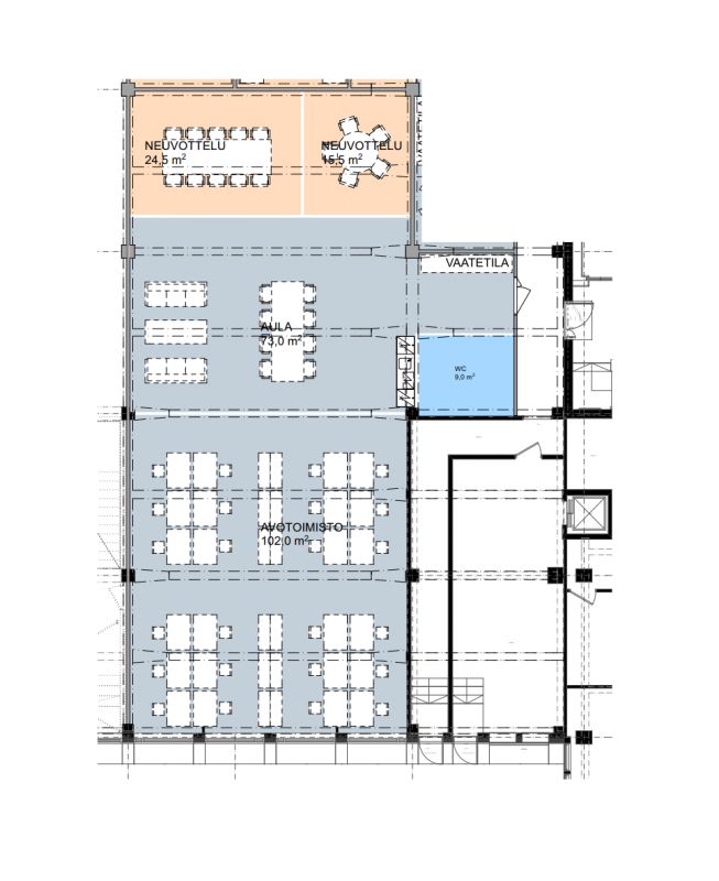
Vapaana Autotalon A-portaan avo-/kombitoimistotilaa, joka saneerataan vuokralaisen toiveiden mukaiseksi. Tilassa on ilmastointi ja se voidaan tarpeen mukaan jakaa kahdelle käyttäjälle.
Osoite
Salomonkatu 17, 00100 Helsinki
Tilatyyppi
Toimistotilaa
226 m2
Tilajako
Jaettavissa
Pohjapiirros
Kiinteistö
Kiinteistö Helsingin Autotalo peruskorjattu ja talotekniikka uudistettu.
Sijainti
Kamppi
Pysäköinti
Oma autohalli ja pyöräparkki.
Palvelut
Kampin kauppakeskus 150 metriä.
Kulkuyhteydet
Metron, keskusbussiaseman ja useiden raitiovaunulinjojen vieressä sekä juna-asema kävelymatkan päässä.
Vapautuu
Heti
Saneerausvuosi
2014
Kerros
3
Energiatehokkuusluokka
Ei lain edellyttämää energiatodistusta
Jaettavissa
Hissi
Ota yhteyttä
Senaatin Notariaatti Oy LKV
Lämmittäjänkatu 4 A
FIN-00880 Helsinki
Tel:
Näytä puhelinnumero
+358 9 7745 100
Pyydä lisätietoa
