Vuokrataan toimistotilat - Helsinki
Kumpulantie 15, Vallila, 00520 Helsinki #10533459
Vuokrataan hyvätasoista muuntojoustavaa toimitilaa kiinteistöstä Kumpulantie 15/Elimäenkatu 28-30. Tilat ovat nykymuodossaan kombitoimistoa ja ne muokataan vuokralaisen toiveita vastaaviksi sekä pohjaratkaisun että materiaalien osalta. Talotekniikka on modernia ja ajanmukaista tässä vuonna 1999 valmistuneesta kiinteistössä; mm. huoneistokohtainen jäähdytys, CAT 6-kaapelointi, kulunvalvonta ym. Tilaan on myös tavarahissiyhteys.
Osoite
Kumpulantie 15, 00520 Helsinki
Tilatyyppi
Toimistotilaa
519 m2
Tilajako
Jaettavissa
331m2
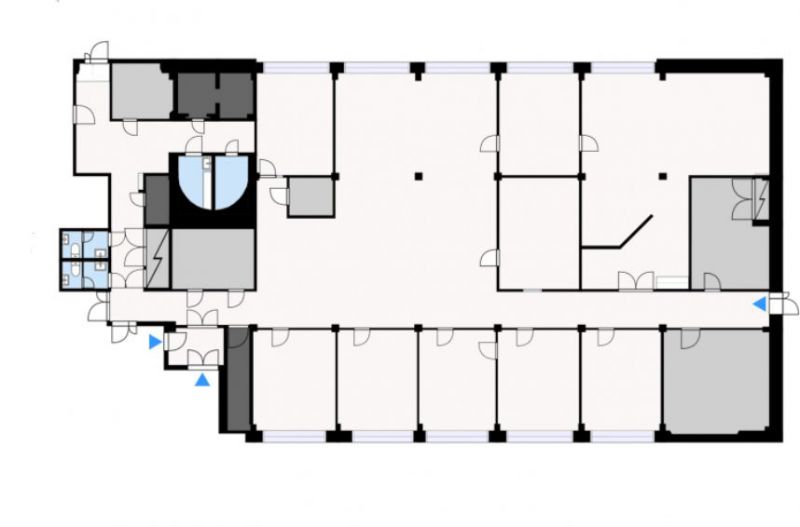
Pohjapiirros
Sijainti
Vallila
Pysäköinti
Kiinteistön omassa lämpimässä autohallissa n. 250 paikkaa, lisäpaikkoja saatavana mm. viereisen kiinteistön parkkihallista tai Q-Park Vallilasta.
Kulkuyhteydet
Pasilan juna-asema n. 10 min. kävelymatkan päässä, raitiovaunu- ja bussipysäkki n. 200 m.
Vapautuu
Heti
Rakennusvuosi
1999
Kerros
5
Energiatehokkuusluokka
Ei lain edellyttämää energiatodistusta
Jaettavissa
Hissi
Ota yhteyttä
Senaatin Notariaatti Oy LKV
Lämmittäjänkatu 4 A
FIN-00880 Helsinki
Tel:
Näytä puhelinnumero
+358 9 7745 100
Pyydä lisätietoa
