Vuokrataan tuotantotilat, varastotilat - Vantaa
Kylänpääntie 4 B, Kivistö, 01750 Vantaa #10529284
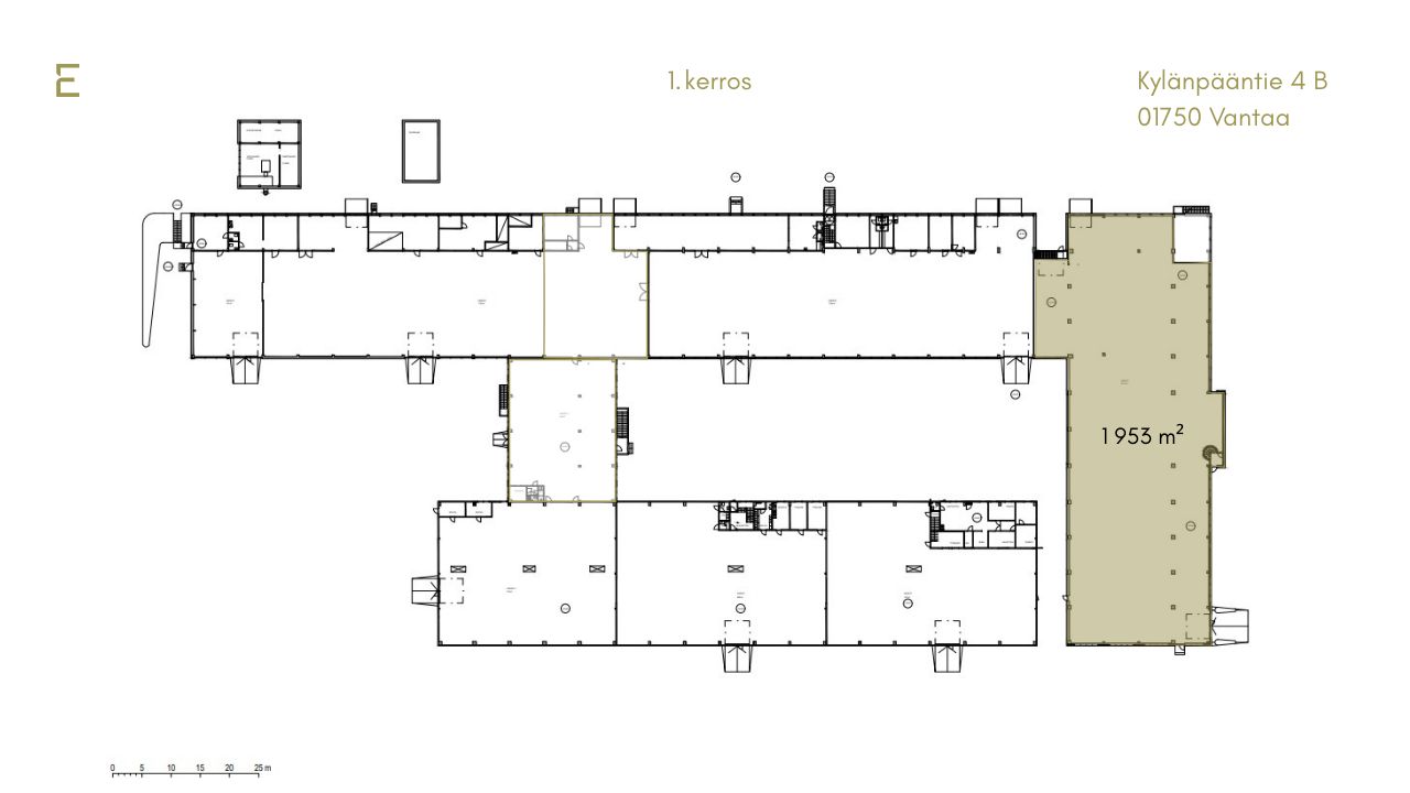
Vuokrattavana katutason sisään ajettavaa tuotanto/varastotilaa.
Osoite
Kylänpääntie 4 B, 01750 Vantaa
Tilatyyppi
Tuotantotilaa
1953 m2
Varastotilaa
1953 m2
Yhteensä
1953 m2
Kiinteistö
Kylänpääntiellä tarjolla hyvien liikenneyhteyksien varrella teollisuus- ja varastokiinteistössä sisään ajettavaa, noin 10 metriä korkeaa tuotanto-/varastotilaa. Tilat ovat muunneltavissa ja jaettavissa tarpeen mukaan.
Sijainti
Kivikko, Vantaa
Pysäköinti
Kiinteistössä on isot piha-alueet.
Palvelut
Lähialueen palvelut.
Kulkuyhteydet
-Bussi
-Oma auto
-Oma auto
Vapautuu
Heti
Kerros
1
Energiatehokkuusluokka
Ei lain edellyttämää energiatodistusta
Katutasossa
Näkyvällä paikalla
Lastauslaituri
Ota yhteyttä
REALIUM OY LKV
Tammasaarenkatu 1, 00180 Helsinki
Vaihde:
Näytä puhelinnumero
010 326 346
Tuomo Mäkelä
tuomo.makela@realium.fi
p.
Näytä puhelinnumero
044 050 1158
Joel Keto
joel.keto@realium.fi
p.
Näytä puhelinnumero
045 317 0330
KAIKKI TILAVAIHTOEHDOT KERRALLA!
SOITA - MEILAA JA TILAA NÄYTTÖ!
Ilmainen palvelu tilanhakijoille.
Kartoitamme parhaat tilavaihtoehdot.
Kaikki kohteet eivät ole netissä.
Pyydä lisätietoa
