Vuokrataan toimistotilat - Helsinki
Hiomotie 3, Pitäjänmäki, 00380 Helsinki #10528992
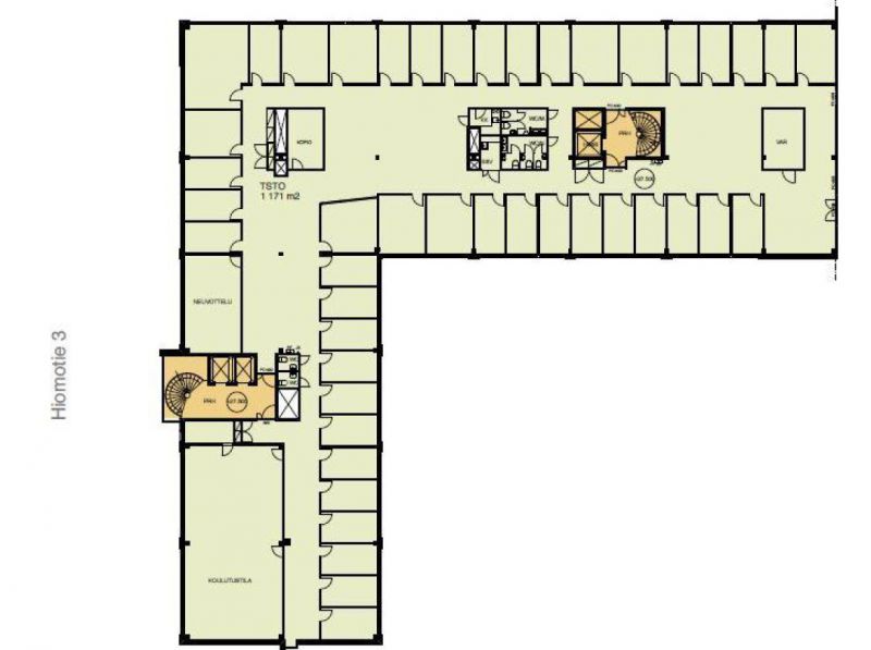
Vuokrattavana tehokasta, laadukasta ja kohtuuhintaista toimistotilaa
Osoite
Hiomotie 3, 00380 Helsinki
Tilatyyppi
Toimistotilaa
1171 m2
Tilajako
Jaettavissa
300 m² / 800 m²
Kiinteistö
Vuokrattavana tehokasta, laadukasta ja kohtuuhintaista toimistotilaa, joka voidaan räätälöidä vastaamaan yrityksen tarpeita.
Sijainti
Pitäjänmäki, Helsinki
Pysäköinti
Autohalli ja runsaasti pysäköintitilaa piha-alueella.
Palvelut
-Aulapalvelut
-Lounasravintola
-Vuokrattavat neuvottelutilat
-Sauna
-Kuntosali
-Lounasravintola
-Vuokrattavat neuvottelutilat
-Sauna
-Kuntosali
Kulkuyhteydet
-Bussi
-Oma auto
-Oma auto
Vapautuu
Heti
Kerros
4
Energiatehokkuusluokka
Ei lain edellyttämää energiatodistusta
Näkyvällä paikalla
Jaettavissa
Hissi
Ota yhteyttä
REALIUM OY LKV
Tammasaarenkatu 1, 00180 Helsinki
Vaihde:
Näytä puhelinnumero
010 326 346
Tuomo Mäkelä
tuomo.makela@realium.fi
p.
Näytä puhelinnumero
044 050 1158
Joel Keto
joel.keto@realium.fi
p.
Näytä puhelinnumero
045 317 0330
KAIKKI TILAVAIHTOEHDOT KERRALLA!
SOITA - MEILAA JA TILAA NÄYTTÖ!
Ilmainen palvelu tilanhakijoille.
Kartoitamme parhaat tilavaihtoehdot.
Kaikki kohteet eivät ole netissä.
Pyydä lisätietoa
