Vuokrataan toimistotilat - Espoo
Sinikalliontie 9, Mankkaa, 02630 Espoo #10525709
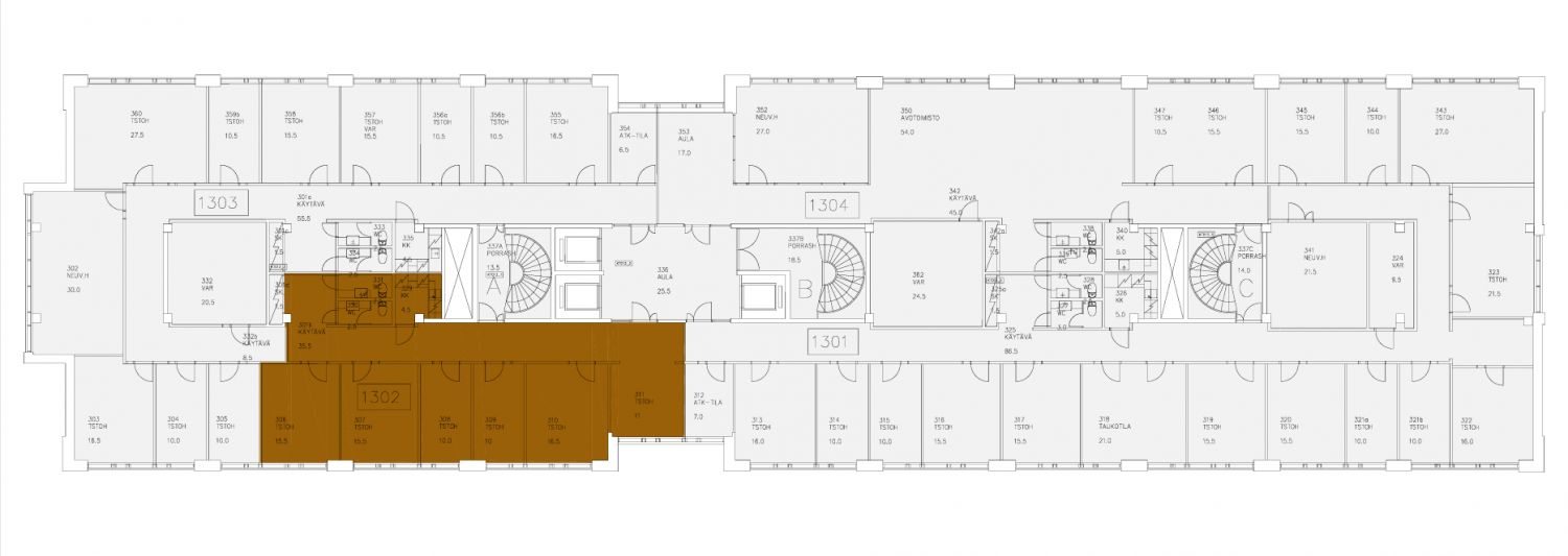
Vuokrattavana pienelle yritykselle sopivaa toimistotilaa.
Osoite
Sinikalliontie 9, 02630 Espoo
Tilatyyppi
Toimistotilaa
131 m2
Kiinteistö
Vuokrattavana pienelle yritykselle sopivaa toimistotilaa. Huoneistossa on omat sosiaali- ja taukotilat. Tila on muokattavissa asiakkaan tarpeen mukaan.
Sijainti
Sinimäki, Espoo
Pysäköinti
Pihalla tarjolla autopaikkoja.
Kulkuyhteydet
-Bussi
-Oma auto
-Oma auto
Vapautuu
Heti
Kerros
3
Energiatehokkuusluokka
Ei lain edellyttämää energiatodistusta
Näkyvällä paikalla
Hissi
Ota yhteyttä
REALIUM OY LKV
Tammasaarenkatu 1, 00180 Helsinki
Vaihde:
Näytä puhelinnumero
010 326 346
Tuomo Mäkelä
tuomo.makela@realium.fi
p.
Näytä puhelinnumero
044 050 1158
Joel Keto
joel.keto@realium.fi
p.
Näytä puhelinnumero
045 317 0330
KAIKKI TILAVAIHTOEHDOT KERRALLA!
SOITA - MEILAA JA TILAA NÄYTTÖ!
Ilmainen palvelu tilanhakijoille.
Kartoitamme parhaat tilavaihtoehdot.
Kaikki kohteet eivät ole netissä.
Pyydä lisätietoa
