Vuokrataan toimistotilat - Helsinki
Paciuksenkatu 21, Pikku-Huopalahti, 00270 Helsinki #10504118
Nykyaikainen FOKUS-toimistotalo sijaitsee Meilahdessa näkyvällä paikalla hyvien liikenneyhteyksien varrella.
Tila koostuu nykykunnossa pääasiassa huoneista, mutta räätälöidään toki käyttäjän tarpeiden mukaisesti.
Erinomaiset liikenneyhteydet kaikkiin ilmansuuntiin. Ota yhteyttä ja sovi esittely, vuokrauspalvelumme on tilanhakijoille maksuton.
Osoite
Paciuksenkatu 21, 00270 Helsinki
Tilatyyppi
Toimistotilaa
850 m2
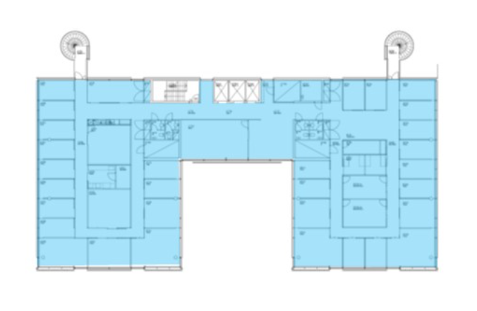
Pohjapiirros
Kiinteistö
Kiinteistössä jäähdyttävä ilmastointi, nopeat tietoliikenneyhteydet, aulapalvelu, neukkareita, tavintola, autohalli jne.
Sijainti
FOKUS on Paciuksenkatu 21:ssä Helsingin Meilahdessa sijaitseva toimistokiinteistö, joka tarjoaa erinomaisen toimintaympäristön ajatustyölle; loistavan sijainnin, tehokkaat toimitilat ja ajanmukaisimmat palvelut yrityksille.
Pysäköinti
Kiinteistössä on autohallit kahdessa kellarikerroksessa, asiakaspaikat pihalla.
Vapautuu
Heti
Rakennusvuosi
2002
Kerros
7 / 8
Energiatehokkuusluokka
Ei lain edellyttämää energiatodistusta
Näkyvällä paikalla
Hissi
Ota yhteyttä
Senaatin Notariaatti Oy LKV
Lämmittäjänkatu 4 A
FIN-00880 Helsinki
Tel:
Näytä puhelinnumero
+358 9 7745 100
Pyydä lisätietoa
