Vuokrataan toimistotilat - Helsinki
Vattuniemenranta 2, 00210 Helsinki #10501391
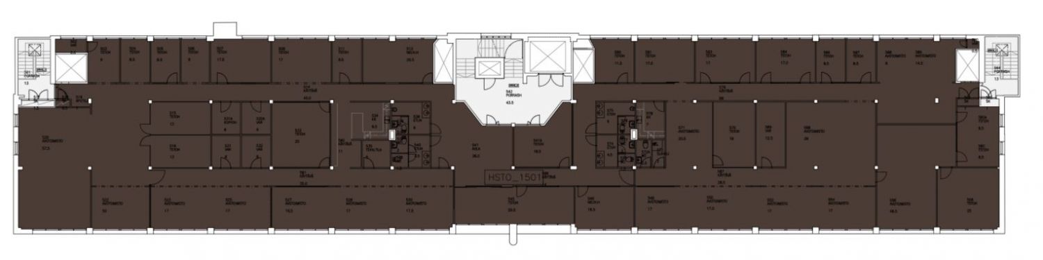
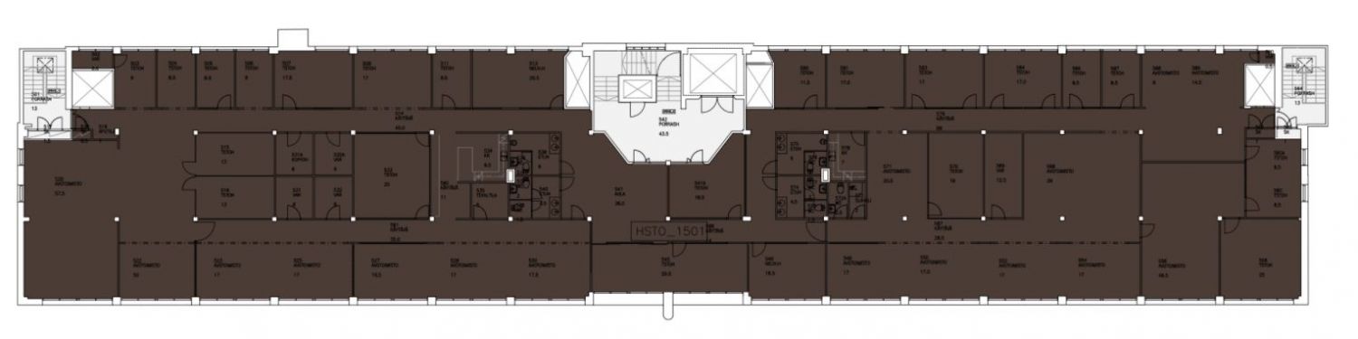
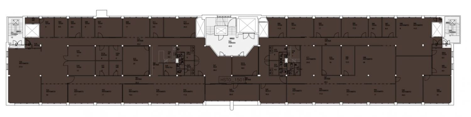
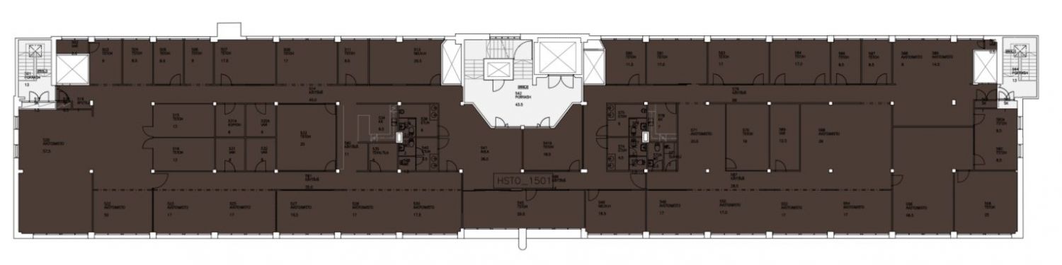
Kauniilla paikalla Lauttasaaressa, meren rannassa vuokrattavana 1111.5 m2 jäähdytettyä avotilaa, jossa on myös muutama huone. Tila sijaitsee kiinteistön viidennessä kerroksessa.
Kiinteistössä palvelee oma lounasravintola, lisäksi lähialueella muita lounaspaikkoja. Autopaikkoja on vuokrattavana kiinteistön pihalla. Mahdollista myös vuokrata varastotilaa toimiston yhteyteen, kuten 30, 37 tai 77 m2 kokoisina.
Lisätietoja numerosta 020 7290 710. Lisää kohteita osoitteessa www.premises.fi.
Energialuokka F.Kerros: 5
Osoite
Vattuniemenranta 2, 00210 Helsinki
Tilatyyppi
Toimistotilaa
1111,5 m2
Kulkuyhteydet
Lauttasaareen hyvät linja-autoyhteydet. Läheinen Länsiväylä takaa sujuvat yhteydet Helsingin keskustaan ja Espoon suuntaan. Länsimetron lähimmälle pysäkille vajaa kilometri.
Liitetiedostot
Ota yhteyttä
CRE PREMISES
Puh. Näytä puhelinnumero 020 7290 710
Vantaankoskentie 14
01670 VANTAA
Pyydä lisätietoa
