Vuokrataan toimistotilat - Turku
Eerikinkatu 12, Keskusta, 20100 Turku #10501032
Osoite
Eerikinkatu 12, 20100 Turku
Tilatyyppi
Toimistotilaa
228 m2
Kiinteistö
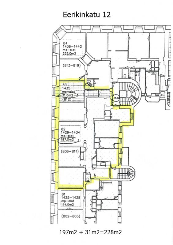
Vuokrattavana toimistotilaa ydinkeskustassa, kauppatorin laidalla, Eerikinkatu 12. Tila on porraskäytävän ylimmässä, 6 kerroksessa. Tilaa on 228 m2. Toimistotilan voi tarvittaessa jakaa myös eri yksikköihin.
Sisäänkäynti on torin puolelta.
Sisäänkäynti on torin puolelta.
Sijainti
Turun ydinkeskustassa. Torin laidalla.
Ympäristö
Turun kaupungin keskusta palveluineen.
Pysäköinti
Hyvät. Esimerkiksi Louhen parkkitalo ihan lähellä
Palvelut
Kaikki Turun kaupungin keskustan palvelut.
Kulkuyhteydet
Hyvät joukoliikenneyhteydet
Vapautuu
Kysy
Kerros
6
Näkyvällä paikalla
Hissi
Ota yhteyttä
X-Index Oy
Jari Akkola
Näytä puhelinnumero
0400-861282
Orikedonkatu 22 A, 20380 Turku
Näytä puhelinnumero
02-487 0 487
Pyydä lisätietoa
