Vuokrataan toimistotilat - Helsinki
Kasarmikatu 23, Kaartinkaupunki, 00130 Helsinki #10499306
Täysin modernisoitua toimistotilaa aivan Esplanadipuiston tuntumasta Jugend arvotalosta. Siisti porraskäytävä ja tilava hissi, tämä toimistotila sijaitsee arvokiinteistön 2:ssa kerroksessa. Ota yhteyttä ja sovi esittely, vuokrauspalvelumme on tilanhakijoille maksuton.
Osoite
Kasarmikatu 23, 00130 Helsinki
Tilatyyppi
Toimistotilaa
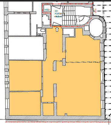
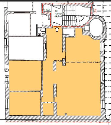
160 m2
Tilajako
Jaettavissa
Pohjapiirros
Kiinteistö
Talossa palvelee viihtyisä Ravintola Gillet Bar & Bistro.
Sijainti
Kaartinkaupunki, Espan puistolle n.150m.
Pysäköinti
Pysäköintitilaa Kasarmikadun parkkihallissa.
Vapautuu
Heti
Kerros
2 / 5
Energiatehokkuusluokka
Ei lain edellyttämää energiatodistusta
Jaettavissa
Hissi
Ota yhteyttä
Senaatin Notariaatti Oy LKV
Lämmittäjänkatu 4 A
FIN-00880 Helsinki
Tel:
Näytä puhelinnumero
+358 9 7745 100
Pyydä lisätietoa
