Vuokrataan toimistotilat - Espoo
Piispanmäentie 5, Olari, 02240 Espoo #10496859
Siistiä ja uudenaikaista toimistotilaa Espoon Olarissa.
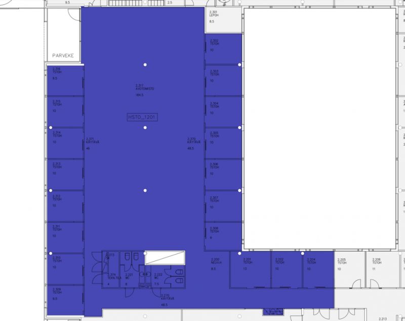
Kiinteistössä toisessa kerroksessa vapaana 697,5m2 hyväkuntoinen avotilaa ja huoneita sisältävä toimistokokonaisuus.
Piispanmäentie 5 on toimistokiinteistö Espoon Olarissa. Kiinteistön ylimmässä kerroksessa sijaitsee saunaosasto neuvottelu- ja edustustiloineen. Rakennuksen ensimmäisessä kerroksessa sijaitsee neuvotteluhuoneet sekä omat tilat aulapalvelulle ja ravintolalle.
Kysy lisää numerosta 044 723 4700 tai info@bref.fi. Palvelumme on tilanhakijoille ilmainen.
Bureau Real Estate Finland Oy
Lars Sonckin kaari 16, 02600 Espoo
Näytä puhelinnumero
0447234700
Bureau Real Estate Finland Oy
https://www.bref.fi