Vuokrataan toimistotilat - Jyväskylä
Sepänkatu 14 A 4, 40720 Jyväskylä #10472465
Osoite
Sepänkatu 14 A 4, 40720 Jyväskylä
Tilatyyppi
Toimistotilaa
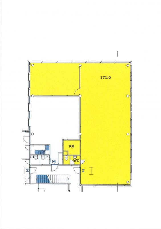
171 m2
Vuokra
1539
Vuokraan sisältyy lämpö, jäähdytys
Kiinteistö
Jäähdytettyä toimistotilaa, jossa yhtenäinen toimistotila, tilava neuvotteluhuone, minikeittiö ja WC. 2.kerros. Hyvä sijainti! Vuokraan kuuluu alakerran häkkivarasto ja 2 autopaikkaa.
Autopaikoista (lämpöpaikkoja) veloitetaan 30 eur/paikka.
Autopaikoista (lämpöpaikkoja) veloitetaan 30 eur/paikka.
Vapautuu
Heti
Ota yhteyttä
OP Koti Keski-Suomi Oy LKV
Janne Kotamäki
Kauppakatu 22, 40100 JYVÄSKYLÄ
Puhelin
Näytä puhelinnumero
010 256 5846
,
Näytä puhelinnumero
050 550 8945
Pyydä lisätietoa
