Vuokrataan toimistotilat - Helsinki
Pursimiehenkatu 29-31, Punavuori, 00150 Helsinki #10448131
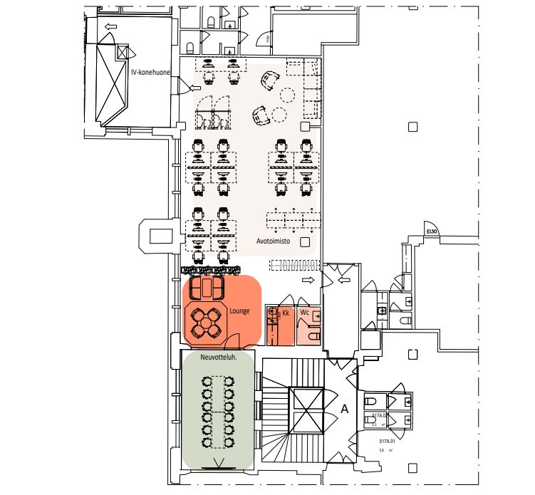
Media- ja suunittelutoimistojen keskittymässä vuokrattavana vanhan teollisuustilan henkeen täydellisesti nykyajan teknisten vaatimusten mukaan saneerattua korkeaa toimitilaa. Tila sijaitsee 5:ssä kerroksessa ja sen isot ikkunat avautuvat Merikorttelin sisäpihalle. SOITA ja SOVI ESITTELY!
Osoite
Pursimiehenkatu 29-31, 00150 Helsinki
Tilatyyppi
Toimistotilaa
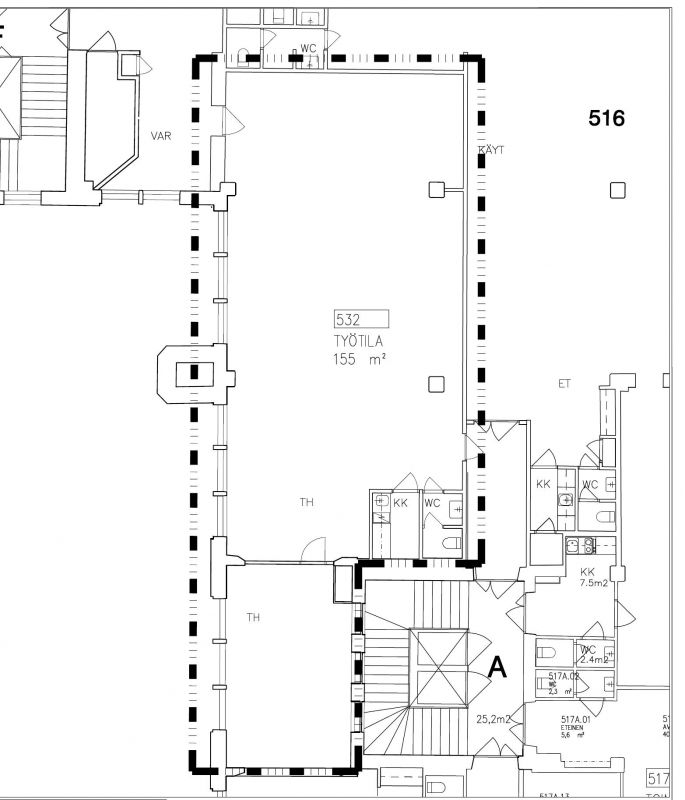
155 m2
Pohjapiirros
Kiinteistö
KOY Merikortteli
Sijainti
Punavuori
Ympäristö
Kehittyvä Punavuoren rantakortteli
Pysäköinti
Kiinteistössä autohalli
Palvelut
Talossa lounasravintola
Kulkuyhteydet
HKL bussit ja ratikka
Muuta
Kohdekuvat eivät välttämättä ole tästä tilasta
Vapautuu
Heti
Kerros
5
Energiatehokkuusluokka
Ei lain edellyttämää energiatodistusta
Hissi
Lastauslaituri
Ota yhteyttä
Senaatin Notariaatti Oy LKV
Lämmittäjänkatu 4 A
FIN-00880 Helsinki
Tel:
Näytä puhelinnumero
+358 9 7745 100
Pyydä lisätietoa
