Vuokrataan liiketilat - Helsinki
Ruoholahdenkatu 14, Kamppi, Kamppi, 00180 Helsinki #10435137
60-luvun kiinteistöön on remontoitu moderneja ja muunneltavia tiloja.
Osoite
Ruoholahdenkatu 14, Kamppi, 00180 Helsinki
Tilatyyppi
Liiketilaa
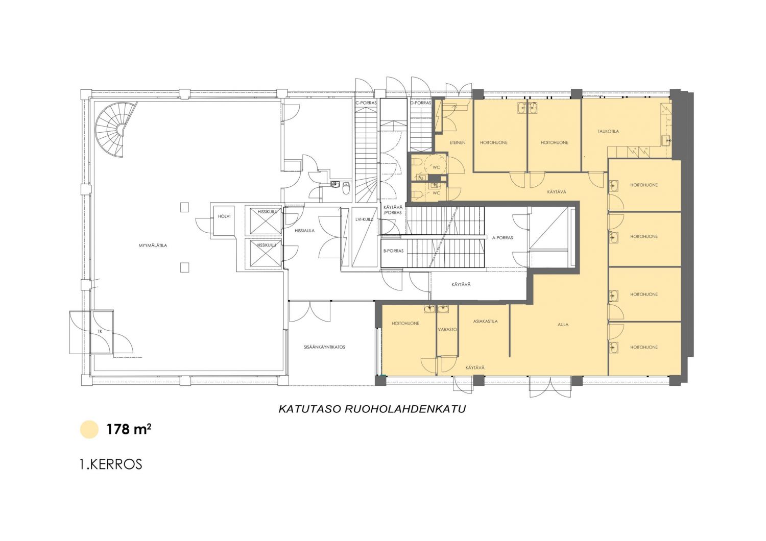
178 m2
Kiinteistö
Vuokrataan kiinteistön 1. kerroksen 178 m²:n liiketila. Tilassa on taukotilan ja vastaanottoaulan lisäksi 7 vesipisteellistä vastaanottohuonetta.
Sijainti
Lähellä Kampin keskustaa.
Pysäköinti
Kiinteistöllä oma autohalli sekä sisäpihalla pysäköintipaikkoja.
Palvelut
Kampin palvelut noin 10 minuutin kävelymatkan päässä.
Kulkuyhteydet
Raitiovaunupysäkki kiinteistön edessä. Kampista metro- ja bussiyhteydet.
Muuta
Pyöräparkki sekä huoltopiste kiinteistön kellarikerroksessa. Suihkutilat sekä pukuhuoneet kuivauskaapeilla.
Vapautuu
Heti
Energiatehokkuusluokka
Ei lain edellyttämää energiatodistusta
Ota yhteyttä
Comreal Oy LKV
Tuula Leikas
Näytä puhelinnumero
040 531 3722
Läkkisepänkuja 6, 00620 Helsinki
Comreal on valtakunnallinen, asiantunteva ja aktiivinen kiinteistöalan kumppani, joka palvelee sekä kiinteistönomistajia että toimitilojen käyttäjiä. Toimintamme ydin on yksinkertainen: tarjota erinomaista palvelua kaikille.
Pyydä lisätietoa
