Vuokrataan toimistotilat - Helsinki
Lapinlahdenkatu 1 A-B, Kamppi, 00180 Helsinki #10419535
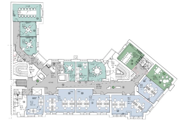
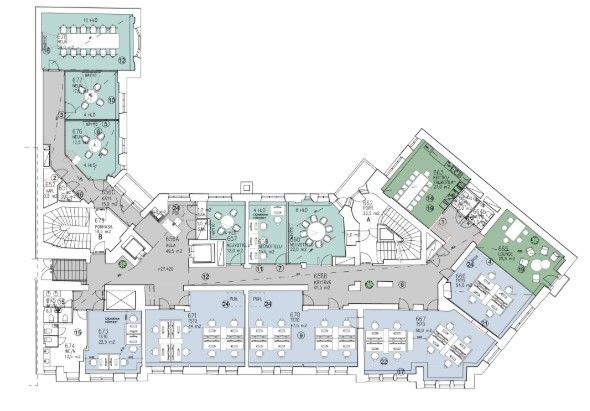
Tämä valoisa jugendtyylinen toimisto kattaa kokonaisen oman kerroksen. Käytävillä ja yhteistiloissa on arvokas koriparketti. Kokonaisuus sisältää useita eri kokoisia huoneita, joten tila on helppo jakaa erilaisiin käyttötarkoituksiin ja eri kokoisille tiimeille. Tilassa on reilun kokoinen taukokeittiö, omat wc:t ja hissiaula. Kuudennen kerroksen maisemat avautuvat Lapinlahdenpuistikkoon. Hauskana yksityiskohtana vihreä alkuperäinen kakluuni yhden työtilan yhteydessä.
Ota yhteyttä ja sovi esittely, vuokrauspalvelumme on tilanhakijoille maksuton.
Senaatin Notariaatti Oy LKV
Lämmittäjänkatu 4 A
FIN-00880 Helsinki
Tel:
Näytä puhelinnumero
+358 9 7745 100
