Vuokrataan toimistotilat - Helsinki
Ruoholahdenkatu 21, Ruoholahti, 00180 Helsinki #10418977
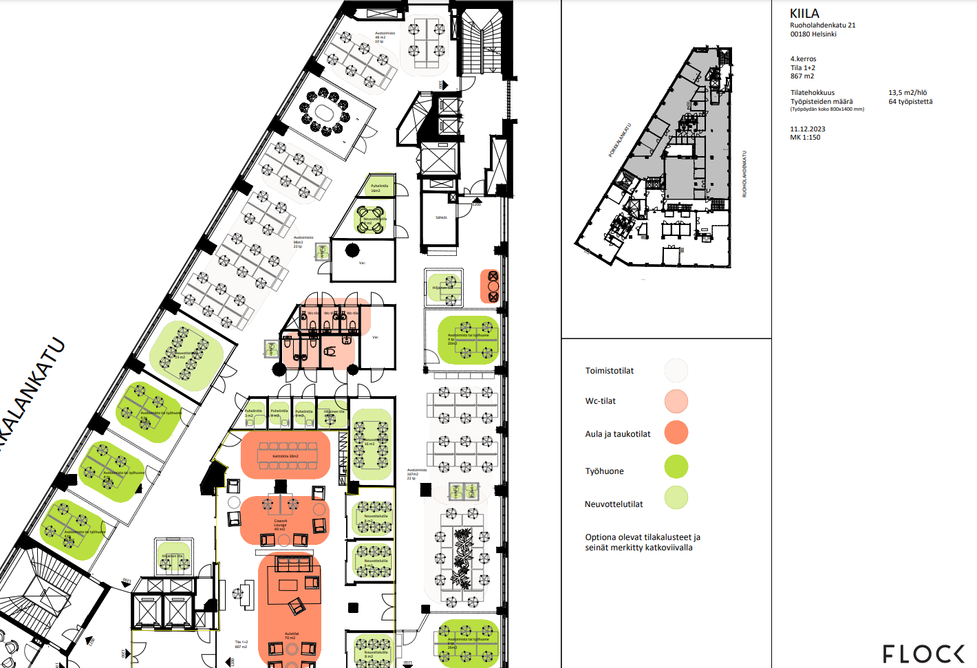
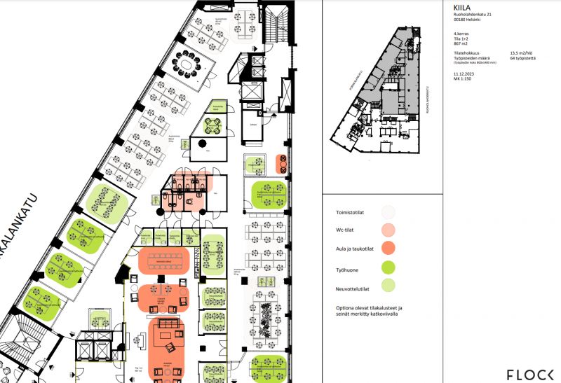
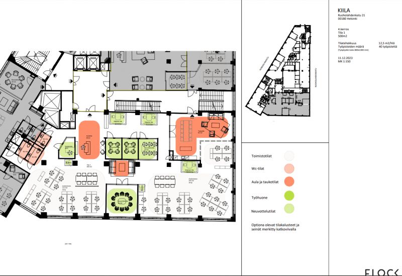
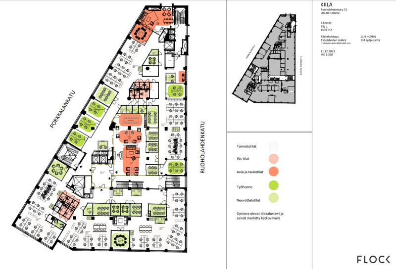
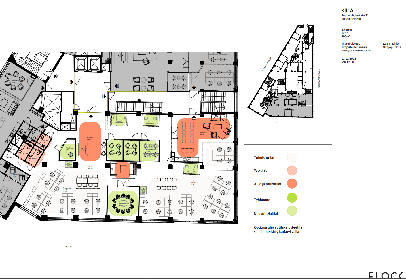
Vuokrattavana koko neljännen kerroksen valoisa toimistotila Kampin alueelta Ruoholahden tuntumassa. Tila voidaan jakaa tarvittaessa pienempiin kokonaisuuksiin (kts. pohjakuvat). Upeat näkymät niin Ruoholahden kuin Kampinkin suuntiin kauniista vastikää remontoiduista ruutuikkunoista. Katso pohjakuvista mahdollisia tilajakoja kerroksesta.
Keskellä on uniikki valoaukollinen korkea tila isompiin henkilöstötilaisuuksiin tai julkistuksiin. Toimii myös upeana työskentely- tai taukotilana.
Kiinteistössä myös katutason joustotilakonsepti POOL, josta voi vuokrata projektille joustavasti lisätilaa ajanjaksolle, joka sopii juuri tarpeisiinne.
Ota yhteyttä ja sovi esittely, vuokrauspalvelumme on tilanhakijoille maksuton.
Jaettavissa
Hissi
Senaatin Notariaatti Oy LKV
Lämmittäjänkatu 4 A
FIN-00880 Helsinki
Tel:
Näytä puhelinnumero
+358 9 7745 100
