Vuokrataan tuotantotilat, varastotilat, työtilat, muut tilat - Turku
Tila 182 n.156m2, Salvumiehenkatu 4, 20320 Turku #10413819
VUOKRATAAN MAANTASOYHTEYDELLÄ LÄMMIN HALLITILA N.156 m² YHTEISKÄYTÄVÄN VARRELLA
Osoite
Salvumiehenkatu 4, 20320 Turku
Tilatyyppi
Tuotantotilaa
156 m2
Varastotilaa
156 m2
Työtilaa
156 m2
Muuta tilaa
156 m2
Yhteensä
156 m2
Vuokra
799 €/kk
Vuokraan sisältyy lämpö
Kiinteistö
Koy Salvumiehenkatu 4
Sijainti
Turun Mälikkälässä, keskeisellä paikalla.
Erinomaisesti ajo mihin suuntaan tahansa.
Erinomaisesti ajo mihin suuntaan tahansa.
Ympäristö
Mälikkälän kauppa- ja teollisuusalue
Pysäköinti
Kiinteistön alueella sop.mukaan.
Kadunvarsipysäköinti.
Kadunvarsipysäköinti.
Palvelut
Rakennuksessa toimii mm. kahvila ja suomen paras leipomo M-Bakery.
Kulkuyhteydet
Erinomaiset kulkuyhteydet mihin suuntaan vain:
Naantalin pikatie n. 200m
ohikulkutie n. 3km
Helsingin moottoritie n. 2km
Naantalin pikatie n. 200m
ohikulkutie n. 3km
Helsingin moottoritie n. 2km
Muuta
MAANTASOYHTEYDELLÄ LÄMMIN HALLITILA N.156 m² YHTEISKÄYTÄVÄN VARRELLA
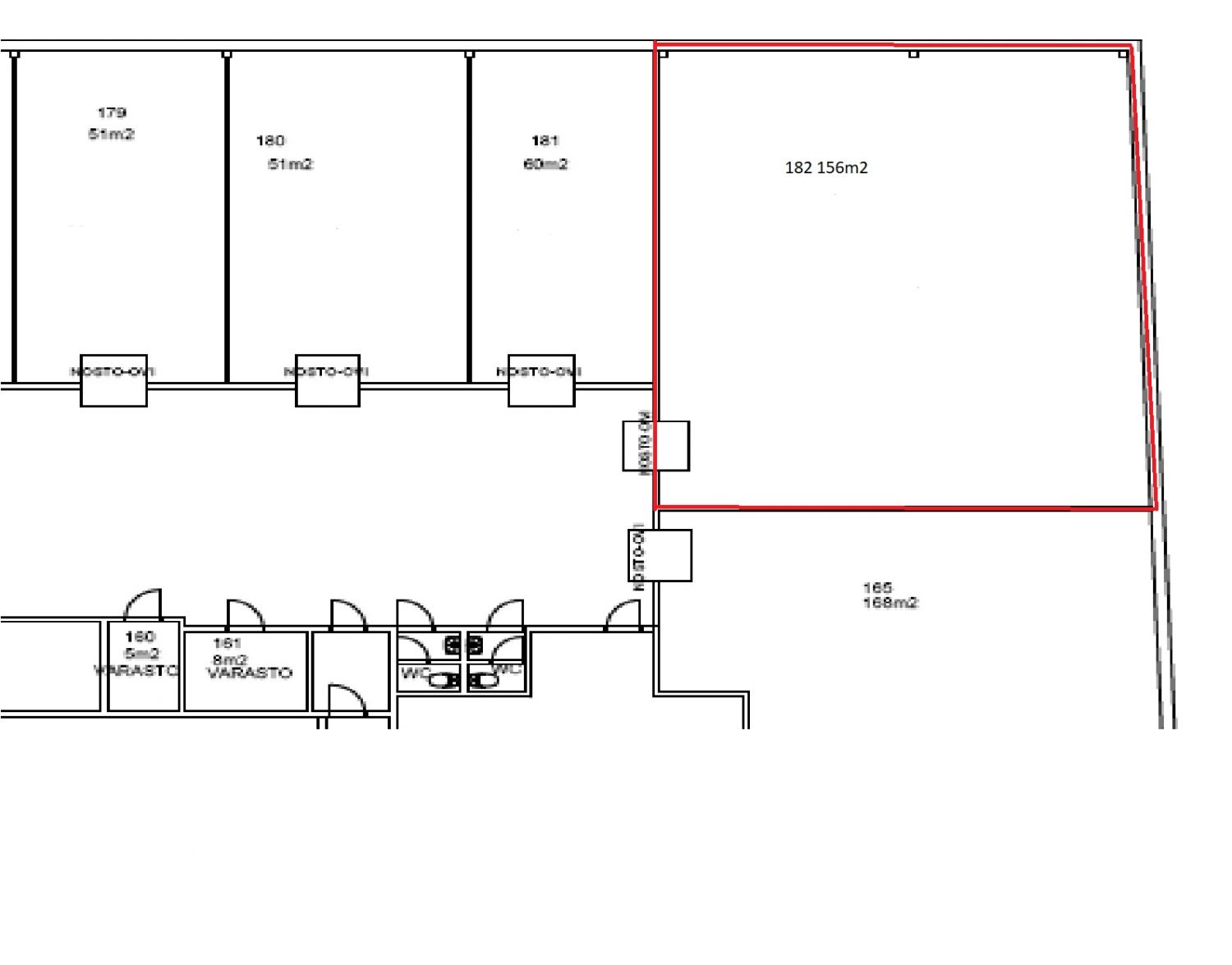
Tila nro 182.
Mälikkälässä 156 m² työ-/varastotila yhteiskäytävän varrella. Tilaan on lastauslaituriyhteys ja tilaan pääsee autolla sisään.
Vuokra 799€/kk + sähkö ja vesi + alv.
Huom! Voidaan vuokrata myös alvittomana.
- Iso nosto-ovi
- Epoksilattiat
- Verkko- ja voimavirta
- Vesipiste
- Lämmitys sisältyy vuokraan
- Kiinteistön pihalla pysäköintimahdollisuus
- Käytävällä wc yhteiskäytössä
- Kiinteistössä nettiliittymä
Todella hyvä sijainti, liikenteellisesti helppo tulla. Kiinteistössä toimii myös Kahvila ja Suomen paras leipomo MBakery. Lähellä mm. Motonet, Atv, Ahlsell, SLO ja Mestaripalvi.
Normaalit sopimusehdot. Luottotiedot tarkistetaan / takaaja.
Esittelyt ja Lisätiedot:
Omistajan edustaja:
Teemu Laaksonen
050-3738737
myynti@yritystiloja.fi
Tila nro 182.
Mälikkälässä 156 m² työ-/varastotila yhteiskäytävän varrella. Tilaan on lastauslaituriyhteys ja tilaan pääsee autolla sisään.
Vuokra 799€/kk + sähkö ja vesi + alv.
Huom! Voidaan vuokrata myös alvittomana.
- Iso nosto-ovi
- Epoksilattiat
- Verkko- ja voimavirta
- Vesipiste
- Lämmitys sisältyy vuokraan
- Kiinteistön pihalla pysäköintimahdollisuus
- Käytävällä wc yhteiskäytössä
- Kiinteistössä nettiliittymä
Todella hyvä sijainti, liikenteellisesti helppo tulla. Kiinteistössä toimii myös Kahvila ja Suomen paras leipomo MBakery. Lähellä mm. Motonet, Atv, Ahlsell, SLO ja Mestaripalvi.
Normaalit sopimusehdot. Luottotiedot tarkistetaan / takaaja.
Esittelyt ja Lisätiedot:
Omistajan edustaja:
Teemu Laaksonen
050-3738737
myynti@yritystiloja.fi
Vapautuu
Sopimuksen mukaan
Kerros
1
Katutasossa
Näkyvällä paikalla
Lastauslaituri
Ota yhteyttä
A-Välitys
Omistajan edustaja:
Teemu Laaksonen
Näytä puhelinnumero
050-3738737
myynti@yritystiloja.fi
Pyydä lisätietoa
