Vuokrataan toimistotilat - Helsinki
Museokatu 8, Töölö, 00100 Helsinki #10407789
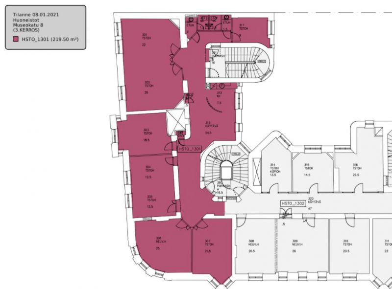
Erittäin siisti jäähdytyksellä varustettu arvokiinteistö hyvällä paikalla Etu-Töölössä eduskuntatalon vieressä, muokattavissa myös enemmän avokonttoriksi. Ota yhteyttä ja sovi esittely, vuokrauspalvelumme on tilanhakijalle maksuton.
Osoite
Museokatu 8, 00100 Helsinki
Tilatyyppi
Toimistotilaa
219 m2
Kiinteistö
Toimistotalo
Sijainti
Etu-Töölö, eduskuntatalon vieressä.
Pysäköinti
Finlandia-parkki 200m.
Palvelut
Talossa 2 lounasravintolaa.
Kulkuyhteydet
Ratikkapysäkki 100m.
Vapautuu
Heti
Kerros
3 / 5
Energiatehokkuusluokka
Ei lain edellyttämää energiatodistusta
Näkyvällä paikalla
Hissi
Ota yhteyttä
Senaatin Notariaatti Oy LKV
Lämmittäjänkatu 4 A
FIN-00880 Helsinki
Tel:
Näytä puhelinnumero
+358 9 7745 100
Pyydä lisätietoa
