Vuokrataan toimistotilat, liiketilat - Helsinki
Salomonkatu 17, Kamppi, 00100 Helsinki #10257326
Toimisto- ja liiketilaa Kampissa!
Osoite
Salomonkatu 17, 00100 Helsinki
Tilatyyppi
Toimistotilaa
79,8 - 274,8 m2
Liiketilaa
224 m2
Yhteensä
79,8 - 498,8 m2
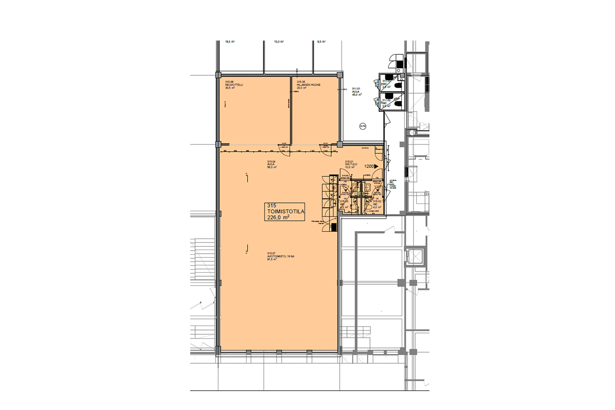
Pohjapiirros
Tila soveltuu
Ravintola
Kiinteistö
- 224 m2, Katutason liiketila, johon etsitään ravintolatoimijaa
- 195 m2, siisti avotoimisto yhdellä neuvottelutilalla
- 79,8 m2 näppärän kokoinen pieni toimisto
Vapautuu
Heti
Ota yhteyttä
Conorin
Toimitilojen vuokraus ja myynti
Näytä puhelinnumero
09 - 612 2230
Toimisto
Valimotie 17-19
Helsinki
Kaikki vapaat tilamme:
vapaat.toimitilat.fi/conorin
Pyydä lisätietoa
