Vuokrataan toimistotilat - Helsinki

Kumpulantie 9, Vallila, 00520 Helsinki #10208600

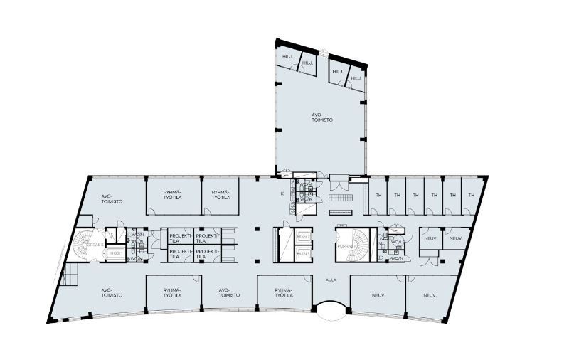
Vuokrataan jaettavissa olevaa toimistotilaa Vallilan vehreämmällä puolella. Kumpula 9 tarjoaa kasvaville yrityksille toimitilaa sekä luovuuteen, että asiantuntijatyöskentelyyn. Toimistotalon joustavien pohjaratkaisujen ansiosta toimistot soveltuvat erinomaisesti nykyaikaiseen monipaikkaiseen smartworktyöskentelyyn. Kiinteistössä on mahdollista rakentaa niin työhuoneita, monitilatyöympäristöjä sekä tiloja digitaaliseen toimistotyöhön. Talosta löytyy myös varastotilaa. Ota yhteyttä ja sovi esittely. Vuokrauspalvelumme on tilanhakijoille ilmainen. Puh. 09 7745 100

Osoite
Kumpulantie 9, 00520 Helsinki
Tilatyyppi
Toimistotilaa
950 m2
Tilajako
Jaettavissa
Kiinteistö
Kiinteistössä on myös hyvät tietoliikenneyhteydet, mitkä mahdollistavat digitaalisen työskentelyn ilman katkoja. Kumpula 9 on helposti saavutettavissa pohjoisesta, idästä, sekä lännestä.
Sijainti
Hyvien kulkuyhteyksien varrella Vallilassa.
Pysäköinti
Kiinteistöstä on 40 vuokrattavaa autopaikkaa sekä polkupyörille oma halli.
Palvelut
Runsas Vallilan palvelutarjonta kävelyetäisyydellä.
Kulkuyhteydet
Lähin bussi- sekä raitiovaunupysäkki sijaitsee kivenheiton päässä Kumpulantiellä sekä Mäkelänkadun pysäkit sijaitsevat 250 metrin päässä. Pasilan juna-asemalle on kilometrin kävelymatka.
Muuta
Kaikissa toimistotiloissa on mm. kaukokylmäjärjestelmä sekä huonekohtainen mahdollisuus säätää ilmanvaihtoa. Rakennukseen on mahdollista asennuttaa myös aurinkopaneeleja kestävää sähkönkäyttöä ajatellen.
Vapautuu
Heti
Energiatehokkuusluokka
Ei lain edellyttämää energiatodistusta

Jaettavissa

Hissi

Ota yhteyttä

Senaatin Notariaatti Oy LKV

Lämmittäjänkatu 4 A
FIN-00880 Helsinki
Tel: Näytä puhelinnumero +358 9 7745 100

  http://www.senaatinnotariaatti.fi
Pyydä lisätietoa

Kohteesta Kumpulantie 9, Helsinki

 

B2B palvelut

MARKKINOINTI

Tavoita oikea kohderyhmä!

LASTAUSRATKAISUT

Mainos
Lastauksien ratkaisut tehokkaammin ja turvallisemmin