Vuokrataan toimistotilat - Espoo
Kutojantie 11, Kilo, 02630 Espoo #10190764
Siisti ja valoisa toimistotila joka on helposti muuunneltavissa. Sijaitsee kiinteistön neljännessä kerroksessa. Tiloissa on jäähdytys sekä CAT-5 tietoliikenneverkko.
Osoite
Kutojantie 11, 02630 Espoo
Tilatyyppi
Toimistotilaa
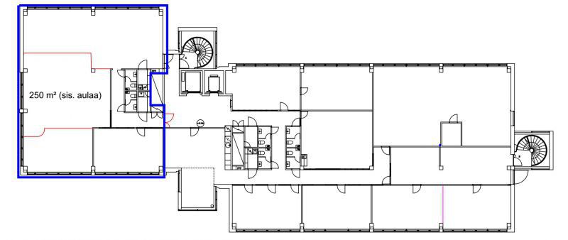
235 m2
Pohjapiirros
Pysäköinti
Pihalla on vuokrattavissa runsaasti paikkoja 20€/kk
Muuta
Laadukasta ja joustavaa toimisotilaa Espoossa. Tilaan sisältyy myös osuus kiinteistön aulasta. Kiinteistössä myös mm. sauna- ja neuvottelutilat.
Vapautuu
Heti
Rakennusvuosi
1991
Kerros
4
Energiatehokkuusluokka
Ei lain edellyttämää energiatodistusta
Hissi
Ota yhteyttä
Senaatin Notariaatti Oy LKV
Lämmittäjänkatu 4 A
FIN-00880 Helsinki
Tel:
Näytä puhelinnumero
+358 9 7745 100
Pyydä lisätietoa
