Vuokrataan toimistotilat - Helsinki
Erottajankatu 19, Keskusta, 00130 Helsinki #10006213
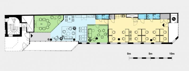
Ydinkeskustan arvokiinteistö, toimitila sijaitsee sisäpihalla, kulku Eteläesplanadi 24A rapun kautta. Tila koostuu avotilasta, taukokeittiöstä, kahdesta neukkarista sekä kahdesta wc-tilasta. Ikkunat sisäpihalle. Ota yhteyttä ja sovi esittely, palvelumme on tilanhakijoille ilmainen.
Osoite
Erottajankatu 19, 00130 Helsinki
Tilatyyppi
Toimistotilaa
195 m2
Pohjapiirros
Sijainti
Erottajankulma.
Pysäköinti
Kellarikerroksessa on omia pysäköintipaikkoja ja lähietäisyydellä useita pysäköintihalleja.
Palvelut
Kaikki keskutan palvelut lähellä.
Kulkuyhteydet
HSL
Vapautuu
Heti
Kerros
2
Energiatehokkuusluokka
G2007
Ympäristöluokitus
BREEAM In-Use Very Good
Näkyvällä paikalla
Ota yhteyttä
Senaatin Notariaatti Oy LKV
Lämmittäjänkatu 4 A
FIN-00880 Helsinki
Tel:
Näytä puhelinnumero
+358 9 7745 100
Pyydä lisätietoa
