Vuokrataan toimistotilat - Helsinki
Ruosilantie 14, Konala, 00390 Helsinki #10006074
Ruosilantie 14 kiinteistö sijaitsee Konalassa aivan Vihdintien vieressä heti Kehä I:n pohjoispuolella liikenteellisesti loistavalla paikalla. Vuokrattavana 3. kerroksen siistikuntoinen monitilatoimisto jossa 754 m2. Talosta saatavilla parkkipaikkoja sekä varastoa. SOITA ja SOVI ESITTELY: 09 77 45 100.
Osoite
Ruosilantie 14, 00390 Helsinki
Tilatyyppi
Toimistotilaa
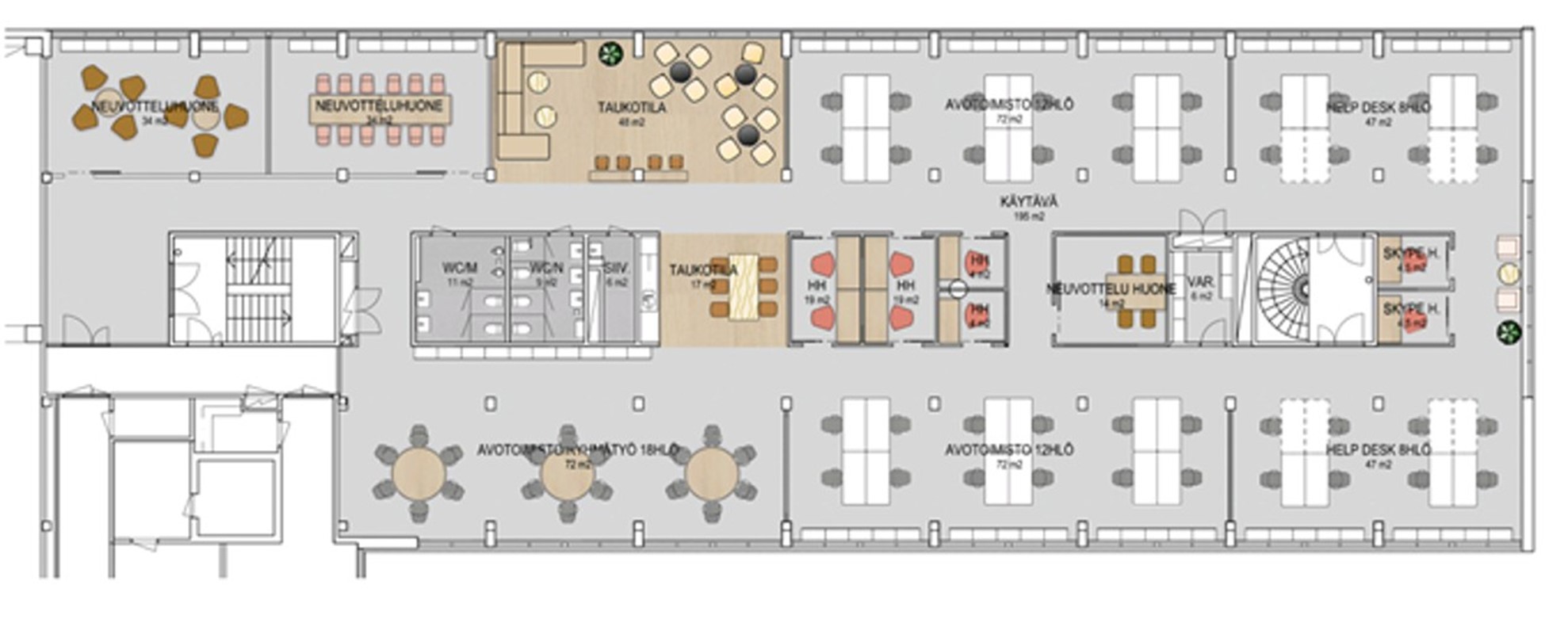
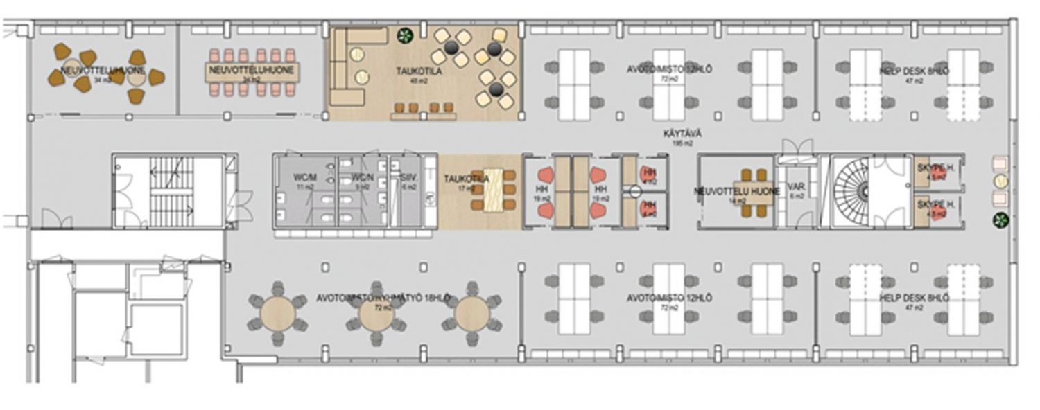
754 m2
Pohjapiirros
Kiinteistö
Ruosilantie 14 on vuonna 1971 rakennettu ja v.2000-2001 peruskorjattu varasto- ja toimistokiinteistö. Se sijaitsee loistavalla paikalla Konalassa sen ytimessä. Tilat ovat muunneltavissa moneen käyttötarkoitukseen. Kiinteistön aidatulla pihalla runsaasti parkkitilaa.
Kiinteistössä on lounasravintola, saunaosasto ja sosiaalitilat. Mahdollisuus vuokrata varastotilaa pohjakerroksen lastauslaiturin läheisyydestä.
Kiinteistössä on lounasravintola, saunaosasto ja sosiaalitilat. Mahdollisuus vuokrata varastotilaa pohjakerroksen lastauslaiturin läheisyydestä.
Sijainti
Kiinteistö sijaitsee Vihdintien välittömässä läheisyydessä ja kehä I:n helposti saavutettavissa. Konalaan hyvät bussiyhteydet ja Malminkartanon juna-asema sijaitsee 1,3 km päässä.
Ympäristö
Logistiikka - teollisuus
Pysäköinti
Pihalla.
Palvelut
Talossa lounasravintola
Kulkuyhteydet
Vihdintie, Kehä ykkönen
Lisätietoa saneerauksista
Täydellisesti peruskorjattu v. 2001
Vapautuu
Heti
Rakennusvuosi
1971
Saneerausvuosi
2001
Kerros
3 / 3
Energiatehokkuusluokka
Ei lain edellyttämää energiatodistusta
Näkyvällä paikalla
Ota yhteyttä
Senaatin Notariaatti Oy LKV
Lämmittäjänkatu 4 A
FIN-00880 Helsinki
Tel:
Näytä puhelinnumero
+358 9 7745 100
Pyydä lisätietoa
