Uudiskohde
Vuokrataan liiketilat - Tampere
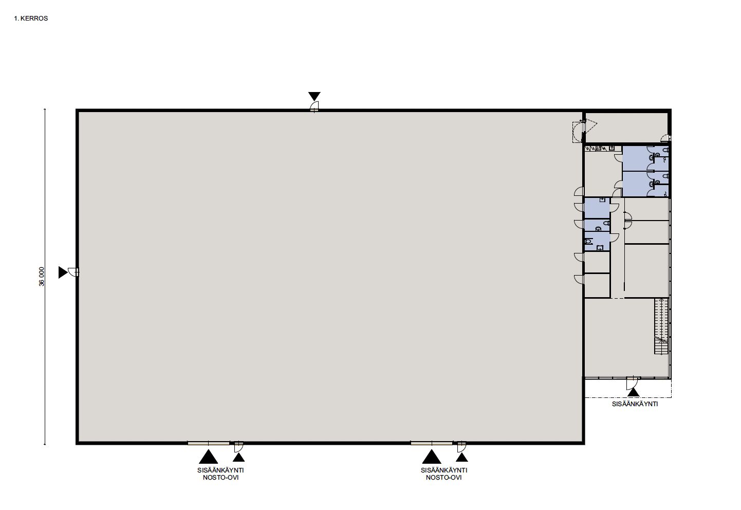
Liike- / toimistotila, Kuoppamäentie 15, Nekala, 33800 Tampere #10821318
Rakennamme vuokralle 2431 m² modernia, energialuokka A:n liike- ja toimistotilaa liikekeskittymässä Nekalassa.
Osoite
Kuoppamäentie 15, 33800 Tampere
Tilatyyppi
Liiketilaa
2431 m2
Ympäristö
Kiinteistö on logistisesti keskeisellä paikalla, Valtatie 3 läheisyydessä. Sijainti moottoritien liittymän läheisyydessä takaa hyvät kulkuyhteydet henkilöautolla ja raskaalla kalustolla mm Helsingin, Vaasan ja Nokian suuntaan.
Lisäksi tontin välittömästä läheisyydestä kulkee Tampereen seudun joukkoliikenteen bussinumero 10.
Lisäksi tontin välittömästä läheisyydestä kulkee Tampereen seudun joukkoliikenteen bussinumero 10.
Pysäköinti
Uudisrakennuksen edessä runsaasti pysäköintitilaa, esteentön pysäköinti ja pyöräparkki asiakkaille ja työntekijöille.
Palvelut
Nekalan liikekeskittymästä löytyy lähes kaikki tukkukaupan yritykset mm. Onninen Express, STARK, K-Rauta Otra, Ruukki Express, Dahl, Rexell, Würth, Tools, Kespro ja Metro-pikatukku. Tien toisella puolella on täyteen vuokrattu Väinö Paunun entinen linja-autovarikko, jonka saneeraustyöt valmistuvat keväällä 2025. Tämän viereen valmistuu kesällä 2025 uudet toimitilat Ahlsell Oy:lle. Entisessä linja-autovarikossa palvelee mm. lounasravintola.
Alue kehittyy jatkuvasti ja uusia valmistuvia toimitiloja on mm. näyttävä Rush Tampere ja vuoden 2025 lopussa valmistuva 8000 brm²:n V55 Sport Station -urheilukeskus. Lisäksi Nekalaan valmistuu myöhemmin Tampereen uusi pääpoliisiasema.
Alue kehittyy jatkuvasti ja uusia valmistuvia toimitiloja on mm. näyttävä Rush Tampere ja vuoden 2025 lopussa valmistuva 8000 brm²:n V55 Sport Station -urheilukeskus. Lisäksi Nekalaan valmistuu myöhemmin Tampereen uusi pääpoliisiasema.
Vapautuu
Kysy
Rakennusvuosi
2025 (uudiskohde)
Energiatehokkuusluokka
A
Uudiskohde
Katutasossa
Näkyvällä paikalla
Ota yhteyttä
Meijou Oy
Saapastie 2
Näytä puhelinnumero
+358 20 1980 200
Marko Kuusisto
Toimitusjohtaja
Näytä puhelinnumero
+358 20 1980 200
Hankkeessa panostetaan vastuullisuuteen ja ympäristöystävällisyyteen. Rakennus toteutetaan energialuokka A:n vaatimusten mukaisesti ja sertifioidaan kansainvälisen BREEAM-järjestelmän kriteerien mukaan.
https://www.meijou.fi/toimitilat/Pyydä lisätietoa
