Videoesittely
Vuokrataan liiketilat - Tampere
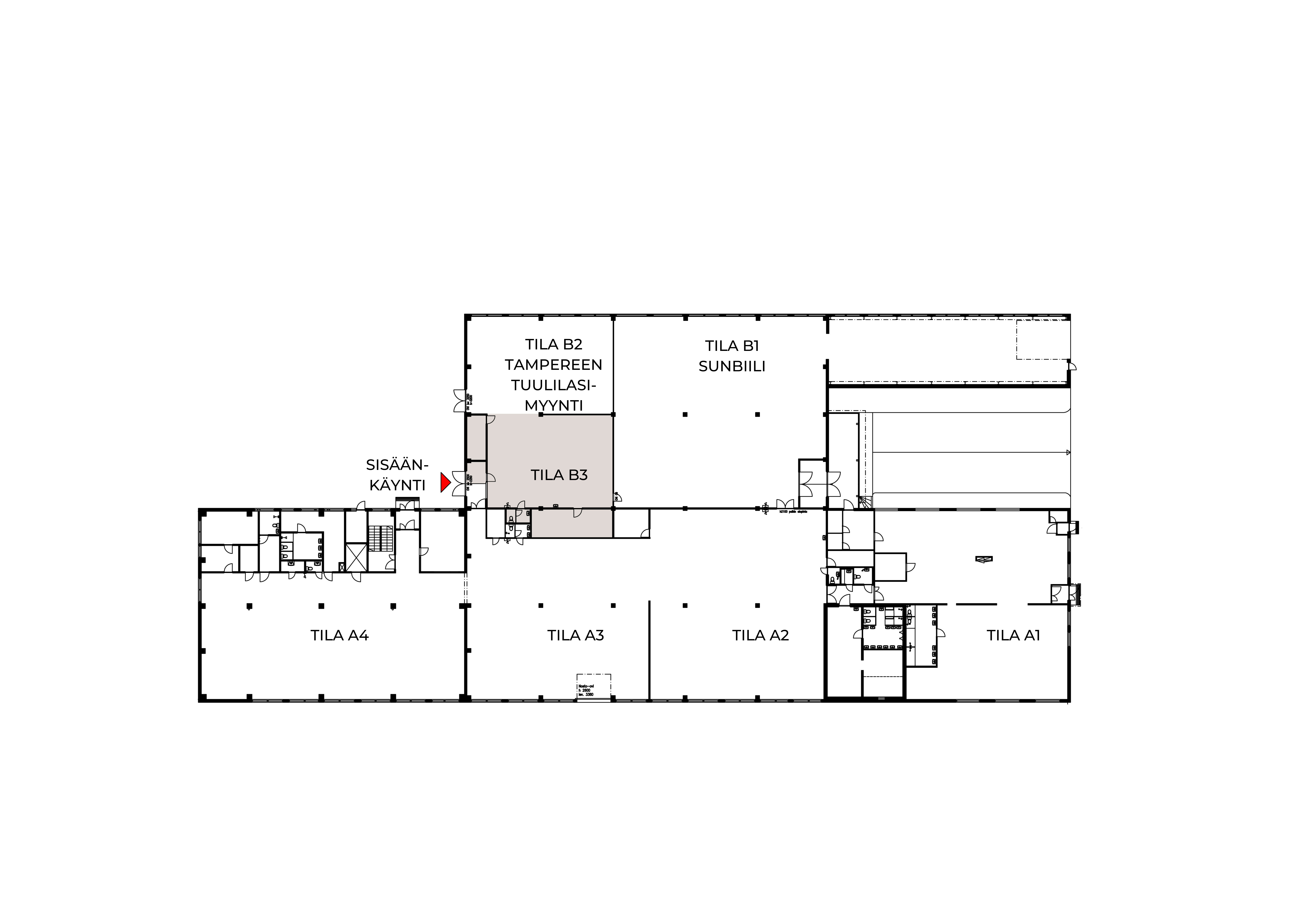
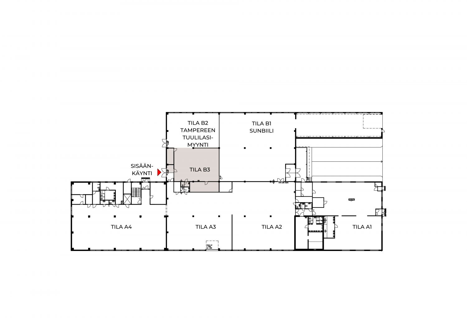
Liiketila B3, Taninkatu 8, Lielahti, 33400 Tampere #10783482
Valoisa tila Tampereen Tuulilasimyynnin vieressä. Tilassa on oma sisäänkäynti, yhteiset sosiaalitilat ja wc
Osoite
Taninkatu 8, 33400 Tampere
Tilatyyppi
Liiketilaa
161 m2
Pohjapiirros
Kiinteistö
Tilan pääsisäänkäynti on Taninkadun puolelta, jonka edessä on tilava parkkialue. Rakennuksen sivusta löytyy nosto-ovi, jonka viereen voidaan ajaa autolla.
Tekniset tiedot
Neliöt: 1638 m2
Tila on myös jaettavissa:
Varasto- ja toimitilaa A1 | 453 m2
Varasto- ja toimitilaa A2 | 368 m2
Varasto- ja toimitilaa A3 | 320 m2
Varasto- ja toimitilaa A4 | 470 m2
Vapaa korkeus: 3 metriä
Nosto-ovien lukumäärä: 1 kpl
Tekniset tiedot
Neliöt: 1638 m2
Tila on myös jaettavissa:
Varasto- ja toimitilaa A1 | 453 m2
Varasto- ja toimitilaa A2 | 368 m2
Varasto- ja toimitilaa A3 | 320 m2
Varasto- ja toimitilaa A4 | 470 m2
Vapaa korkeus: 3 metriä
Nosto-ovien lukumäärä: 1 kpl
Ympäristö
Kiinteistö on logistisesti erinomaisella paikalla, keskellä Lielahden kauppakeskittymää. Alueen infrastruktuuria on viime vuosina kehitetty merkittävästi liikenteen sujuvuuden parantamiseksi. Muun muassa rantatunneli, sekä kolmas lisäkaista liittymän ja Lielahden Enqvistinkadun välillä ovat osa näitä parannuksia.
Turvesuonkadulta kulkevat Tampereen seudun joukkoliikenteen bussinumerot 4, 34 sekä 80 mahdollistaen hyvät julkiset yhteydet Tampereen keskustaan sekä sen ympäristökuntiin. Myös bussinumeroiden 9, 12, 22 ja 38 pysäkit ovat rakennuksen läheisyydessä. Lisäksi rakenteilla on raitiovaunulinja Lielahteen, joka aloittaa toimintansa lähivuosina.
Turvesuonkadulta kulkevat Tampereen seudun joukkoliikenteen bussinumerot 4, 34 sekä 80 mahdollistaen hyvät julkiset yhteydet Tampereen keskustaan sekä sen ympäristökuntiin. Myös bussinumeroiden 9, 12, 22 ja 38 pysäkit ovat rakennuksen läheisyydessä. Lisäksi rakenteilla on raitiovaunulinja Lielahteen, joka aloittaa toimintansa lähivuosina.
Pysäköinti
Kiinteistön edestä löytyy tilava ja ilmainen parkkialue henkilökunnan ja asiakkaiden pysäköintiä varten.
Vuokralaisia
Samassa kiinteistössä toimivia yrityksiä ovat Tuulilasimyynti, HH-Kiinteistöpalvelut ja autoliike Sunbiili. Tien toisella puolella sijaitsevat lounasruokaa tarjoava Ninan Keittiö sekä meksikolaista ruokaa tarjoava Pancho Villa. Kiinteistön vieressä on St1-huoltoasema ja lukuisia autoliikkeitä muun muassa Tampereen AutoCenter, Veho, Länsiauto ja Levoranta.
Vapautuu
Kysy
Energiatehokkuusluokka
-
Näkyvällä paikalla
Ota yhteyttä
Meijou Oy
Saapastie 2
Näytä puhelinnumero
+358 40 555 5413
Marko Kuusisto
Toimitusjohtaja
Näytä puhelinnumero
+358 20 1980 200
"Meijou rakensi Titry ry:lle uudet toimitilat Suokorvenkadulle, joten nämä monipuoliset ja valoisat tilat vapautuivat Lielahden ytimestä."
https://www.meijou.fi/toimitilat/Pyydä lisätietoa
